Stettin: Großzügige Altbauwohnung in denkmalgeschützter Villa mit Terrasse & Balkonen
590,000 €
Beschreibung
Charmantes Altbau-Juwel im Herzen von Stettin – vielseitig nutzbar
Willkommen in Ihrem neuen Zuhause oder Geschäftssitz! Diese großzügige Immobilie befindet sich im repräsentativen Zentrum von Stettin, in einer historischen, denkmalgeschützten Villa aus der Gründerzeit in der prestigeträchtigen Wielkopolska-Straße.
Die Wohnung mit einer Fläche von 166,72 m² erstreckt sich über das gesamte erste Obergeschoss dieser stilvollen Altbauvilla aus dem Jahr 1920. Umgeben von majestätischen Villen aus dem späten 19. Jahrhundert und eingebettet in viel Grün, bietet dieses Domizil sowohl Privatsphäre als auch ausgezeichnete Infrastruktur in direkter Umgebung – ideal für Liebhaber klassischer Architektur.
Highlights der Immobilie
- Raumhöhe: ca. 3,35 m – ein besonderes Raumgefühl
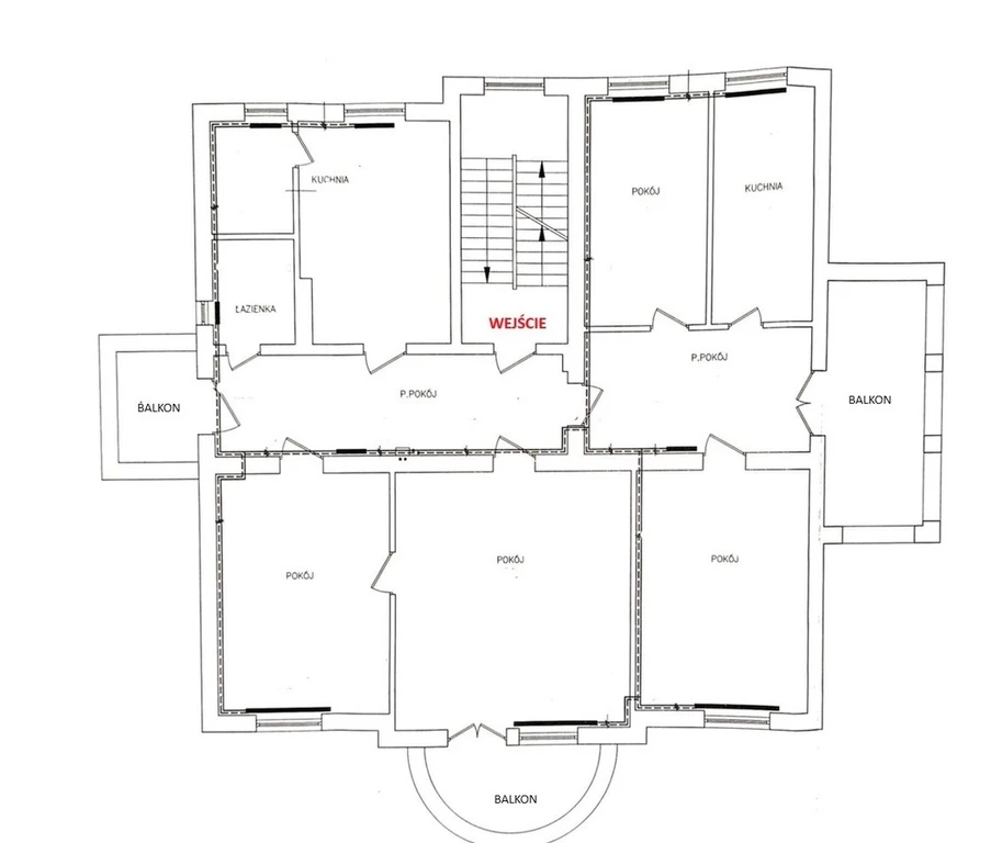
- Aufteilung: 4 großzügige Zimmer, 2 Flure, 2 Küchen, 1 Bad, 1 Hauswirtschaftsraum
- Außenbereiche: 2 Balkone und ein großer überdachter Terrasse
- Keller: eigener Kellerraum vorhanden
- Nutzung des Gartens möglich: gepflegter Gartenbereich mit altem Baumbestand
- Parkplatz: Stellplätze für Bewohner auf dem Grundstück
- Sicherung: komplett umzäuntes Gelände, Gegensprechanlage vorhanden
Das gepflegte Treppenhaus und die ruhige Nachbarschaft unterstreichen den exklusiven Charakter dieser besonderen Immobilie.
Geeignet für viele Nutzungsmöglichkeiten
Ob exklusives Wohnen, Kanzlei, Praxis, Atelier oder Firmensitz – die flexible Raumaufteilung macht diese Wohnung zu einem idealen Ort sowohl zum Leben als auch zum Arbeiten. Zudem besteht großes Potenzial zur Aufteilung in kleinere Wohneinheiten oder Gewerberäume – ganz nach Ihren Bedürfnissen.
Tischlerhandwerk & originale Elemente
Die original erhaltene, massive Holzinnentüren zeugen von hoher Qualität und Charme der damaligen Baukunst. Unter Linoleum und Fliesen bestehen Möglichkeiten, die ursprünglichen Holzdielen wieder freizulegen – perfekt für Altbau-Liebhaber.
Renovierungen & technischer Zustand
Folgende Modernisierungen wurden bereits vorgenommen:
- Erneuerung der Elektrik in einem Teil der Wohnung
- Tausch der Abwasserleitungen
- Modernisierung der zentralen Heizungsanlage (Fernwärmeanschluss vorhanden, Vertrag mit städtischem Anbieter)
- Austausch der Gasinstallation inklusive neue Steigleitung
- Fenster ersetzt durch moderne PVC-Fenster
- Wände und Decken wurden geglättet und gestrichen
Die Wohnung befindet sich in einem guten technischen Zustand und kann direkt bezogen oder nach individuellen Vorstellungen weiter angepasst werden.
Zusätzliche Informationen
- Küche: zwei Küchen mit Fenster
- Bodenbeläge: Linoleum, Holzdielen, Fliesen
- Etage: komplette 1. Etage (insgesamt 1 Etage im Haus)
- Wärmeversorgung: Fernwärme aus dem städtischen Heiznetz
- Warmwasser: Gastherme mit zwei Heizkreisläufen
Lage – urbane Ruhe mit idealer Infrastruktur
Die zentrale Stadtlage bietet alle Vorteile urbanen Lebens. In unmittelbarer Nähe befinden sich:
- Einkaufsmöglichkeiten, Restaurants, Cafés
- Schulen, Kindergärten und Tagesstätten
- Universität und zahlreiche Dienstleister
- Fitnessstudios, Apotheken, medizinische Einrichtungen
- Parks, Spielplätze und kulturelle Angebote
- Sehr gute Anbindung an den öffentlichen Nahverkehr
Eigentumsverhältnisse
- Eigentumsform: Volleigentum mit Grundbuch
Diese stilvolle Villa-Etage ist ein echtes Unikat – ein seltenes Angebot für Menschen mit Sinn für Geschichte, Raumgefühl und Perspektive. Lassen Sie sich von der Atmosphäre dieses exklusiven Altbaus inspirieren. Wir freuen uns auf Ihre Anfrage!
Details
Wohnung zu verkaufen – Śródmieście-Centrum
Zum Verkauf steht eine großzügige Wohnung mit einer Gesamtfläche von 166,72 m² im Stadtteil Śródmieście-Centrum. Die Immobilie befindet sich in einem Einfamilienhaus aus dem Jahr 1920 und bietet viele Nutzungsmöglichkeiten – ideal für Familien oder zur Kombination von Wohnen und Arbeiten.
Eigenschaften der Immobilie
- Immobilientyp: Wohnung
- Gebäudetyp: Haus
- Baujahr: 1920
- Bauweise: Ziegel
- Etagenanzahl (inkl. EG): 1
- Deckenhöhe: 335 cm
- Wohnfläche: 166,72 m²
- Standard: Renovierungsbedürftig / Auffrischung empfohlen
- Küche: Mit Fenster
- Bodenbeläge: Linoleum, Holzdielen, Fliesen
- Badezimmer: 1
- Garten: Ja
- Garage: Ja
- Vollständig umzäuntes Grundstück: Ja
Ausstattung und Medien
- Gasanschluss: Ja
- Warmwasser: Gastherme mit zwei Kreisläufen
- Heizung: Fernwärme aus dem städtischen Netz
- Türsprechanlage: Ja
Lage und Umgebung
Die Wohnung liegt in zentraler Lage mit einer sehr gut entwickelten Infrastruktur. Alles für den täglichen Bedarf sowie zahlreiche Freizeit- und Bildungseinrichtungen befinden sich in der näheren Umgebung:
- Schwimmbad, Park, Spielplatz
- Geschäfte, gastronomische Einrichtungen, Apotheke, Bank
- Kindergarten, Grundschule, Universität
- Polizei, Krankenhaus
- Fitnesscenter
- Sehr gute Anbindung an den öffentlichen Nahverkehr
Diese einzigartige Immobilie in zentraler Stadtlage vereint großzügigen Wohnraum mit urbaner Lebensqualität. Ideal für alle, die das Leben in der Stadt mit viel Raum zum Gestalten verbinden möchten.
Hinweis
- Das erste Foto in unserer Galerie wurde leicht bearbeitet, um zu veranschaulichen, wie die Wohnung aussehen könnte – beispielsweise durch eine geänderte Wandfarbe. Die nachfolgenden Bilder zeigen den tatsächlichen Zustand der Immobilie.
- Der in Euro angegebene Preis entspricht dem Preis in Złoty, stellt jedoch aufgrund von Wechselkursschwankungen stets einen Näherungswert dar. In unseren Anzeigen ist stets auch der vom Verkäufer gewünschte Preis in Złoty angegeben.
Hinweise zur polnischen Immobilienpraxis:
- Begrenzte Objektinformationen: In Polen ist es üblich, dass Immobilienanzeigen nicht den genauen Standort der Immobilie preisgeben.
- Grundrisse: Detaillierte Grundrisse werden in Exposés nicht immer bereitgestellt.
Als Immobilienbüro bieten wir deutschsprachigen Kunden eine umfassende Betreuung an. Wir vertreten Sie als Käufer.
Wir arbeiten mit geprüften Partnern zusammen (Immobilienbewertung, Steuerliche und rechtliche Beratung, Vereidigte Übersetzungen, Renovierung sanierungsbedürftiger Objekte).
Bei Kapitalanlagen übernehmen wir auch die Verwaltung der Immobilie.
Persönliche Begleitung – transparent, kompetent und auf Deutsch.
Eigenschaften der Immobilie
- Gas
- Zaun
- Garage
- Garten
- Keller
- Balkon
Diese Immobilien könnten Sie ebenfalls interessieren
Über uns
Willkommen bei Ihrem Immobilienpartner in Stettin und Westpommern!
Wir sind ein engagiertes Immobilienbüro mit langjähriger Erfahrung auf dem lokalen Markt. In unserem Angebot finden Sie eine große Auswahl an Immobilien in Stettin sowie attraktive Objekte an der polnischen Ostseeküste – ob zum Wohnen, als Kapitalanlage oder zur Feriennutzung.
Wir sprechen Deutsch und begleiten Sie gerne professionell durch den gesamten Kauf- oder Verkaufsprozess. Ob Wohnung, Haus, Grundstück oder Ferienimmobilie – wir finden garantiert die passende Adresse für Sie!
Besuchen Sie uns auf eine Tasse Kaffee in unserem Büro oder nehmen Sie einfach Kontakt mit uns auf. Wir freuen uns auf Sie!
Zusammenarbeit mit uns
Wir sind ein Immobilienbüro, das mit Maklerbüros in der Woiwodschaft Westpommern in Polen zusammenarbeitet. Dabei vertreten wir stets nur eine Seite der Transaktion – nämlich den Kunden aus Deutschland und den DACH-Ländern. In seinem Namen verhandeln wir den Preis, prüfen das Angebot und übernehmen sämtliche Formalitäten.
Auch nach dem Kauf stehen wir unseren Kunden beratend zur Seite und bleiben mit ihnen in Kontakt. Auf Wunsch unterstützen wir auch bei der Renovierung oder umfassenden Sanierung der Immobilie. Darüber hinaus bieten wir die Verwaltung von vermieteten Immobilien an – im Raum Stettin und der näheren Umgebung.
Wir legen großen Wert auf klare Regeln und ein faires Miteinander. Unsere Provision entspricht den in Polen üblichen Sätzen: 3.69% des Kaufpreises bei Wohnungen und Häusern sowie 6,15% bei Grundstücken. Die Provision wird beim Notar im Rahmen der Vertragsunterzeichnung fällig und bezahlt.
Wir arbeiten mit einer renommierten deutschsprachigen Notarkanzlei in Stettin zusammen.
Steuerliche Vorteile
Beim Erwerb von Bestandsimmobilien fällt lediglich eine geringe Grunderwerbsteuer an, die bei Immobilien auf dem Zweitmarkt 2% und bei Immobilien auf dem Erstmarkt 0% beträgt. Darüber hinaus richtet sich die Grundsteuer in Polen nach der Fläche und ist äußerst niedrig.