Charmantes Einfamilienhaus mit Seeblick und großem Garten in Neuwarp
467,000 €
Beschreibung
Charmantes Einfamilienhaus mit Garten und Seeblick in Nowe Warpno
Willkommen in Ihrem neuen Zuhause – einem modernen und stilvoll renovierten Einfamilienhaus mit herrlichem Blick auf den Nowowarpieńskie-See. Eingebettet in eine grüne, ruhige Umgebung nahe der deutschen Grenze und nur ca. 35 km von Szczecin entfernt, bietet dieses Anwesen perfekte Bedingungen zum Wohnen oder als Investmentobjekt.
Wohnen in besonderem Ambiente
Das Haus mit einer großzügigen Wohnfläche von 250 m² wurde vollständig saniert: Die sichtbaren Holzbalken und hochwertige Holzelemente harmonieren mit einem modernen, eleganten Stil in hellen Farbtönen – ein Ort mit Seele und Charakter.
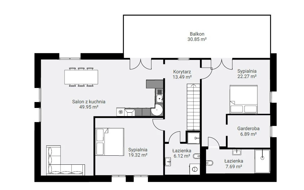
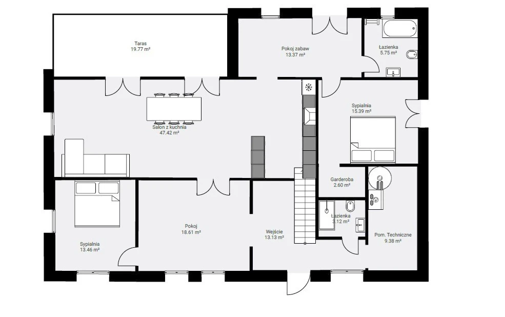
Raumaufteilung:
Erdgeschoss:
- Einladender Flur – 13,13 m²
- Offener Wohn- und Essbereich mit Zugang zur Terrasse – 47,42 m²
- 2 Schlafzimmer, eines davon mit Ankleide – 15,39 m² und 13,46 m²
- 2 Badezimmer – 5,75 m² und 3,12 m² (eines zur freien Gestaltung)
- 2 weitere Zimmer – 18,61 m² und 13,37 m²
- Hauswirtschaftsraum – 9,38 m²
Obergeschoss:
- Großzügiger Wohnbereich mit Möglichkeit zur Einrichtung einer Küche – 49,95 m²
- Schlafzimmer – 22,27 m² mit Ankleideraum – 6,89 m² und Bad – 7,96 m² (zur freien Gestaltung)
- Weiteres Schlafzimmer – 19,32 m²
- Badezimmer – 6,12 m²
- Flur – 13,49 m²
Ausstattung und Merkmale:
- Grundstücksfläche: 4.900 m² mit zahlreichen Obstbäumen
- Möglichkeit zur Aufteilung in zwei separate Wohneinheiten
- Heizung über moderne Wärmepumpe
- Fußbodenheizung im Erdgeschoss
- Neue dreifach verglaste Fenster
- Neue Fassadengestaltung
- Holzfußböden auf beiden Etagen
- Offene Küche mit hochwertigen BLUM-Systemen und modernen Einbaugeräten (Kühlschrank, Backofen, Geschirrspüler)
- 4 stilvolle Badezimmer, ausgestattet mit Dusche, Badewanne, WC und Waschtisch
- Terrasse (insgesamt ca. 20 m²) mit Zugang vom Wohnbereich und vom Schlafzimmer
- Gemischte Grundstückseinfriedung
- Carport
- Stadtwasser und -kanalisation
- Stromanschluss mit 400V
- Gasanschluss vorhanden
- Internet und Kabelfernsehen
Umgebung:
Das Anwesen liegt in einer ruhigen Wohnstraße in Nowe Warpno. In der Nähe finden sich Einkaufsmöglichkeiten, ein Tennisplatz, eine Marina und ein Badestrand am See – perfekte Voraussetzungen für Freizeit, Entspannung und Bewegung an der frischen Luft.
Dieses liebevoll restaurierte Haus ist die ideale Wahl für Familien oder als Anlageobjekt zur Vermietung – dank der durchdachten Raumaufteilung besteht die Möglichkeit, zwei unabhängige Wohneinheiten zu schaffen.
Ein Ort zum Verweilen – wir laden Sie herzlich ein, dieses besondere Zuhause zu entdecken.
Details
Immobilienart: Einfamilienhaus
Grundstückslage: Ebenes Grundstück
Gesamtfläche: 250,00 m²
Grundstücksfläche: 4.900,00 m²
Grundstücksform: Rechteckig
Wohnfläche: 250,00 m²
Eigentumsform des Grundstücks: Eigentum
Baujahr: 1922
Bauweise: Ziegel
Bauzustand: Sehr gut
Standard: Sehr gut
Anzahl der Etagen (inkl. Erdgeschoss): 1
Dach: Ziegeldach
Dachgeschoss: Ausgebaut
Fenster: Kunststofffenster
Fußbodenart: Holzdielen
Küchentyp: Kochnische
Badezimmeranzahl: 4
Ausstattung der Badezimmer: Dusche, Badewanne, WC, Waschbecken
Heizung: Wärmepumpe
Warmwasser:
Gasanschluss: Ja
Wasseranschluss: Öffentlicher Wasseranschluss
Kanalisation: Öffentlich
Elektrizität: Ja
Spannung 400V (Starkstrom): Ja
Telefonanschluss: Ja
Internet: Ja
Kabelfernsehen: Ja
Ausstattung:
- Kühlschrank
- Backofen
- Geschirrspüler
Garage: Ja
Garten: Ja
Kleiderschrank / begehbarer Kleiderschrank: Ja
Hauswirtschaftsraum: Ja
Terrasse: Ja
Anzahl der Terrassen: 2
Terrassenfläche: 20 m²
Zaunart: Gemischt
Zufahrt: Ruhige Straße
Umgebung:
- Nächstgelegenes See: in der Nähe
- Öffentliche Verkehrsmittel: in der Nähe
Hinweis
- Das erste Foto in unserer Galerie wurde leicht bearbeitet, um zu veranschaulichen, wie die Wohnung aussehen könnte – beispielsweise durch eine geänderte Wandfarbe. Die nachfolgenden Bilder zeigen den tatsächlichen Zustand der Immobilie.
- Der in Euro angegebene Preis entspricht dem Preis in Złoty, stellt jedoch aufgrund von Wechselkursschwankungen stets einen Näherungswert dar. In unseren Anzeigen ist stets auch der vom Verkäufer gewünschte Preis in Złoty angegeben.
Hinweise zur polnischen Immobilienpraxis:
- Begrenzte Objektinformationen: In Polen ist es üblich, dass Immobilienanzeigen nicht den genauen Standort der Immobilie preisgeben.
- Grundrisse: Detaillierte Grundrisse werden in Exposés nicht immer bereitgestellt.
Als Immobilienbüro bieten wir deutschsprachigen Kunden eine umfassende Betreuung an. Wir vertreten Sie als Käufer.
Wir arbeiten mit geprüften Partnern zusammen (Immobilienbewertung, Steuerliche und rechtliche Beratung, Vereidigte Übersetzungen, Renovierung sanierungsbedürftiger Objekte).
Bei Kapitalanlagen übernehmen wir auch die Verwaltung der Immobilie.
Persönliche Begleitung – transparent, kompetent und auf Deutsch.
Eigenschaften der Immobilie
- Gas
- Garage
- Garten
- Garderobe
- Terrasse
Diese Immobilien könnten Sie ebenfalls interessieren
Über uns
Willkommen bei Ihrem Immobilienpartner in Stettin und Westpommern!
Wir sind ein engagiertes Immobilienbüro mit langjähriger Erfahrung auf dem lokalen Markt. In unserem Angebot finden Sie eine große Auswahl an Immobilien in Stettin sowie attraktive Objekte an der polnischen Ostseeküste – ob zum Wohnen, als Kapitalanlage oder zur Feriennutzung.
Wir sprechen Deutsch und begleiten Sie gerne professionell durch den gesamten Kauf- oder Verkaufsprozess. Ob Wohnung, Haus, Grundstück oder Ferienimmobilie – wir finden garantiert die passende Adresse für Sie!
Besuchen Sie uns auf eine Tasse Kaffee in unserem Büro oder nehmen Sie einfach Kontakt mit uns auf. Wir freuen uns auf Sie!
Zusammenarbeit mit uns
Wir sind ein Immobilienbüro, das mit Maklerbüros in der Woiwodschaft Westpommern in Polen zusammenarbeitet. Dabei vertreten wir stets nur eine Seite der Transaktion – nämlich den Kunden aus Deutschland und den DACH-Ländern. In seinem Namen verhandeln wir den Preis, prüfen das Angebot und übernehmen sämtliche Formalitäten.
Auch nach dem Kauf stehen wir unseren Kunden beratend zur Seite und bleiben mit ihnen in Kontakt. Auf Wunsch unterstützen wir auch bei der Renovierung oder umfassenden Sanierung der Immobilie. Darüber hinaus bieten wir die Verwaltung von vermieteten Immobilien an – im Raum Stettin und der näheren Umgebung.
Wir legen großen Wert auf klare Regeln und ein faires Miteinander. Unsere Provision entspricht den in Polen üblichen Sätzen: 3.69% des Kaufpreises bei Wohnungen und Häusern sowie 6,15% bei Grundstücken. Die Provision wird beim Notar im Rahmen der Vertragsunterzeichnung fällig und bezahlt.
Wir arbeiten mit einer renommierten deutschsprachigen Notarkanzlei in Stettin zusammen.
Steuerliche Vorteile
Beim Erwerb von Bestandsimmobilien fällt lediglich eine geringe Grunderwerbsteuer an, die bei Immobilien auf dem Zweitmarkt 2% und bei Immobilien auf dem Erstmarkt 0% beträgt. Darüber hinaus richtet sich die Grundsteuer in Polen nach der Fläche und ist äußerst niedrig.