Neubau-Doppelhaushälfte mit Garten in ruhiger Wohnlage von Oberende
283,000 €
Beschreibung
Modernes Doppelhaus mit großzügigem Garten in ruhiger Lage
Willkommen in Ihrem zukünftigen Zuhause! Dieses moderne, komfortable Doppelhaus entsteht im Jahr 2025 in einem charmanten Wohnviertel mit viel Grün und guter Erreichbarkeit. Die Immobilie befindet sich auf einem ebenen, rechteckigen Grundstück mit einer Fläche von 400 m² und besticht durch eine durchdachte Raumaufteilung sowie durch eine hochwertige Ausführung im attraktiven Rohbauzustand („Standard deweloperski“).
Fakten im Überblick:
- Hausart: Doppelhaushälfte
- Wohnfläche: 128 m²
- Grundstück: 400 m²
- Etagenanzahl: 1 (inkl. Erdgeschoss)
- Baujahr: 2025
- Zimmer: Großzügige Räume mit Flächen von ca. 40 m², 17 m², 15,28 m², 10,23 m² und 9,85 m²
- Badezimmer: 1 Bad (7,54 m²) mit Fenster & Handtuchheizkörper, 1 separates WC (1,76 m²)
- Küche: Offene Küche mit Wohnbereich
- Dach: Nutzbares, wärmegedämmtes Dachgeschoss mit 20 cm Dämmung, Dach mit grauer Keramikdachziegel
- Boden: Betonboden zur individuellen Gestaltung
- Außenwände: 25 cm Ziegel + 15 cm Dämmung + Putz
- Verglasung: Moderne Kunststofffenster, dreifach verglast, große Terrassentüren
- Innenwand zwischen Einheiten: 24 cm stark, Schalldämmklasse 20
- Heizung: Hocheffizienter Zwei-Kreislauf-Gasbrennwertkessel (THELIA CONDENS)
- Installation: Strom, Starkstrom (400V), Wasser, Abwasser, Internet, Kabelfernsehen, Alarmanlage, Gegensprechanlage
- Kamin: Anschluss vorbereitet
- Dachrinnen und Fallrohre: Inklusive
- Schornstein-Verkleidungen: Inklusive
- Hauseingangstür: Hochwertige Tür von PANTOR, 72 mm
Raumaufteilung:
Erdgeschoss
- Großzügiger Wohnbereich mit Küchenanschluss – ca. 40 m²
- Zimmer – 9,85 m²
- Technik-/Wirtschaftsraum – 4,62 m²
- Abstellraum – 1,61 m²
- Separates WC – 1,76 m²
- Windfang/Diele – 4,27 m²
Obergeschoss (ohne Dachschrägen)
- Schlafzimmer 1 – 17 m²
- Schlafzimmer 2 – 15,28 m²
- Schlafzimmer 3 – 10,23 m²
- Badezimmer – 7,54 m²
- Ankleidezimmer – 4,46 m²
- Flur – 6,57 m²
Grundstück & Umgebung:
- Zwei private Stellplätze direkt am Haus
- Gepflegter Garten mit schönem Abstand zu den Nachbarhäusern
- Systemzaun (außer Front) installiert
- Helle Lage mit viel Tageslicht
- Ruhige Nebenstraße
Lage:
Die Immobilie befindet sich in einer familienfreundlichen Umgebung in der Nähe von
- Wäldern und Erholungsflächen
- Einkaufsmöglichkeiten
- Grundschule und Kindergarten
- Apotheke, Fitnessstudio und Klinik
- Stadtbus-Haltestelle
Preisgestaltung:
- Gesamtpreis auf Anfrage
- Projekt im Rohbauzustand – ideal zur individuellen Gestaltung
- Grundstück inklusive
- Käufer zahlt keine Grundsteuer bei Kauf
Ein perfekter Ort zum Wohlfühlen – modern, geräumig und mit idealer Infrastruktur für Menschen, die ein Zuhause in angenehmer Nachbarschaft suchen.
Vereinbaren Sie gerne einen Besichtigungstermin – wir freuen uns auf Sie!
Details
Immobilienart: Doppelhaushälfte
Baujahr: 2025
Gesamtfläche: 128,00 m²
Nutzfläche: 128,00 m²
Grundstücksfläche: 400,00 m²
Grundstücksform: Rechteck
Breite des Grundstücks: 11,00 m
Länge des Grundstücks: 31,00 m
Lage des Grundstücks: Flaches Gelände
Ausbaustandard: Rohbau (entwicklerstandard)
Bauweise: Ziegel
Anzahl der Etagen (inkl. Erdgeschoss): 1
Dachform: Satteldach mit Keramikdachziegeln
Bodenart: Beton
Fenstertyp: Kunststofffenster
Dachboden: Ausgebaut
Garage: Ja
Garten: Ja
Garderobe: Ja
Kamin: Ja
Räume:
- Wohnzimmer mit Küchenbereich: 40 m²
- Schlafzimmer: 17 m²
- Zimmer: 15,28 m²
- Zimmer: 10,23 m²
- Büro: 9,85 m²
- Badezimmer: 7,54 m²
- WC: 1,76 m²
Küche: Offene Küche
Badezimmerausstattung: Handtuchheizkörper, Fenster
Anschlüsse & Technik:
- Elektrizität: Ja (inkl. 400 V Anschluss)
- Gas: Ja
- Heizungsart: Gas-Zentralheizung (2-Kreis-Therme)
- Warmwasser: Gas
- Kanalisation: Öffentlich
- Wasserquelle: Öffentlich
- Internetanschluss: Ja
- Kabelfernsehen: Ja
- Alarmanlage: Ja
- Gegensprechanlage: Ja
Zufahrtsstraße: Ruhige Seitenstraße
Einfriedung: Maschendrahtzaun
Lage:
In der Nähe befinden sich:
- Wald
- Geschäft
- Kindergarten
- Grundschule
- Öffentliche Verkehrsmittel
- Apotheke
- Fitnessstudio
- Krankenhaus
- Bank
Preis inklusive Ausstattung:
- Badezimmerausstattung (z. B. Handtuchheizkörper, Fenster)
- Vollständige Medienanschlüsse
Gesamtkosten für den Kauf in Euro (inkl. Steuern):
Keine weiteren Steuerangaben oder Abgaben erforderlich.
Alle Preise brutto, z. B.:
- Beispielkosten: €500 (PLN 2.140) (Hinweis: Nur falls solche Angaben im Text vorhanden wären)
Hinweis
- Das erste Foto in unserer Galerie wurde leicht bearbeitet, um zu veranschaulichen, wie die Wohnung aussehen könnte – beispielsweise durch eine geänderte Wandfarbe. Die nachfolgenden Bilder zeigen den tatsächlichen Zustand der Immobilie.
- Der in Euro angegebene Preis entspricht dem Preis in Złoty, stellt jedoch aufgrund von Wechselkursschwankungen stets einen Näherungswert dar. In unseren Anzeigen ist stets auch der vom Verkäufer gewünschte Preis in Złoty angegeben.
Hinweise zur polnischen Immobilienpraxis:
- Begrenzte Objektinformationen: In Polen ist es üblich, dass Immobilienanzeigen nicht den genauen Standort der Immobilie preisgeben.
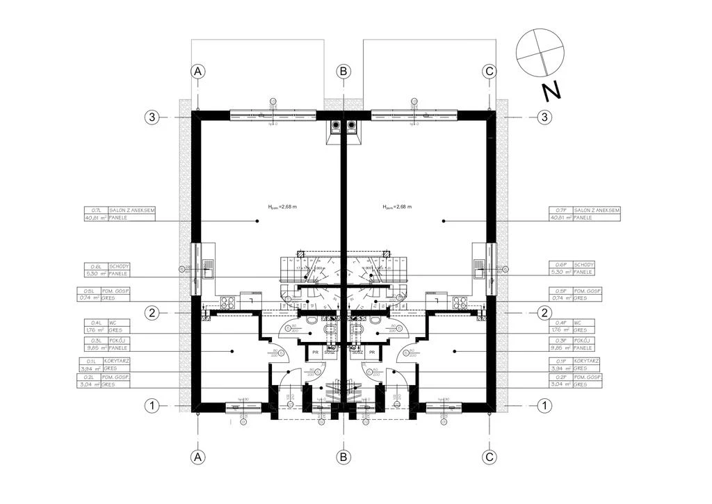
- Grundrisse: Detaillierte Grundrisse werden in Exposés nicht immer bereitgestellt.
Als Immobilienbüro bieten wir deutschsprachigen Kunden eine umfassende Betreuung an. Wir vertreten Sie als Käufer.
Wir arbeiten mit geprüften Partnern zusammen (Immobilienbewertung, Steuerliche und rechtliche Beratung, Vereidigte Übersetzungen, Renovierung sanierungsbedürftiger Objekte).
Bei Kapitalanlagen übernehmen wir auch die Verwaltung der Immobilie.
Persönliche Begleitung – transparent, kompetent und auf Deutsch.
Eigenschaften der Immobilie
- Gas
- Garage
- Garten
- Garderobe
- Kamin
Diese Immobilien könnten Sie ebenfalls interessieren
Über uns
Willkommen bei Ihrem Immobilienpartner in Stettin und Westpommern!
Wir sind ein engagiertes Immobilienbüro mit langjähriger Erfahrung auf dem lokalen Markt. In unserem Angebot finden Sie eine große Auswahl an Immobilien in Stettin sowie attraktive Objekte an der polnischen Ostseeküste – ob zum Wohnen, als Kapitalanlage oder zur Feriennutzung.
Wir sprechen Deutsch und begleiten Sie gerne professionell durch den gesamten Kauf- oder Verkaufsprozess. Ob Wohnung, Haus, Grundstück oder Ferienimmobilie – wir finden garantiert die passende Adresse für Sie!
Besuchen Sie uns auf eine Tasse Kaffee in unserem Büro oder nehmen Sie einfach Kontakt mit uns auf. Wir freuen uns auf Sie!
Zusammenarbeit mit uns
Wir sind ein Immobilienbüro, das mit Maklerbüros in der Woiwodschaft Westpommern in Polen zusammenarbeitet. Dabei vertreten wir stets nur eine Seite der Transaktion – nämlich den Kunden aus Deutschland und den DACH-Ländern. In seinem Namen verhandeln wir den Preis, prüfen das Angebot und übernehmen sämtliche Formalitäten.
Auch nach dem Kauf stehen wir unseren Kunden beratend zur Seite und bleiben mit ihnen in Kontakt. Auf Wunsch unterstützen wir auch bei der Renovierung oder umfassenden Sanierung der Immobilie. Darüber hinaus bieten wir die Verwaltung von vermieteten Immobilien an – im Raum Stettin und der näheren Umgebung.
Wir legen großen Wert auf klare Regeln und ein faires Miteinander. Unsere Provision entspricht den in Polen üblichen Sätzen: 3.69% des Kaufpreises bei Wohnungen und Häusern sowie 6,15% bei Grundstücken. Die Provision wird beim Notar im Rahmen der Vertragsunterzeichnung fällig und bezahlt.
Wir arbeiten mit einer renommierten deutschsprachigen Notarkanzlei in Stettin zusammen.
Steuerliche Vorteile
Beim Erwerb von Bestandsimmobilien fällt lediglich eine geringe Grunderwerbsteuer an, die bei Immobilien auf dem Zweitmarkt 2% und bei Immobilien auf dem Erstmarkt 0% beträgt. Darüber hinaus richtet sich die Grundsteuer in Polen nach der Fläche und ist äußerst niedrig.