Neubau-Doppelhaushälfte mit Weitblick ins Grüne in Siadło Dolne bei Stettin
248,000 €
Beschreibung
Stilvoller Neubau-Doppelhaushälfte mit Blick ins Grüne – traumhafte Lage nahe Szczecin
Willkommen in Ihrem neuen Zuhause in Siadło Dolne – einer charmanten Ortschaft nur 10 Autominuten vom Zentrum Stettins entfernt. Dieses moderne Haus in Doppelhausbauweise bietet nicht nur höchsten Wohnkomfort, sondern auch eine malerische Lage mit Blick auf einen idyllischen Teich und neue Wohnhäuser in der Nachbarschaft.
Highlights der Immobilie
- Gesamtfläche: 118,20 m²
- Wohnfläche: 107,10 m²
- Grundstücksfläche: 390 m² (rechteckig, eben)
- Baujahr: 2023
- Zustand: Neubau, bezugsfertig im Rohbau – ideal zur individuellen Endgestaltung
- Etagen: Erdgeschoss + Obergeschoss
- Heizung: Moderne Wärmepumpe (8 kW von Atlantic, Frankreich) mit Fußbodenheizung im ganzen Haus
- Ausblick: Auf den Teich und angrenzende Natur
Außenbereich & Lage
Das Haus liegt am Ende einer ruhigen Sackgasse, was für absolute Ruhe und Privatsphäre sorgt. Die Zufahrt erfolgt über eine gepflegte Pflasterstraße. Nur wenige Schritte entfernt befinden sich eine schöne Marina sowie ein Spazierweg mit Grillplätzen – ideal für entspannte Stunden mit Familie und Freunden.
Ein Supermarkt und ein Restaurant sind im Bau und ergänzen demnächst die Infrastruktur der wachsenden Wohnsiedlung.
Der private Garten ist bereits eingezäunt und wartet auf Ihre individuelle Gestaltung. Optional kann eine Carport-Lösung zusätzlich erworben werden (Details auf Anfrage).
Energieeffiziente Bauweise
Der moderne Neubau wurde mit hochwertigen Materialien errichtet:
- Außenwände: Kalksandsteinblöcke (Silka)
- Fundament: Bodenplatte mit Pfahlgründung
- Dämmung: 20 cm Styropor an Fassade, Dachdämmung mit PUR-Schaum
- Dach: mit langlebigen Betondachziegeln
- Fenster und Türen: Dreifachverglaste PVC-Fenster, einbruchhemmende Haustür vom Typ "Gerda"
- Elektrik: Komplett mit Schaltern, Steckdosen, zentralem Steuerungssystem für Fußbodenheizung
- Sicherheit: Alarmanlage vorbereitet (Verkabelung in allen fensterhaltigen Räumen)
Vorinstallation für eine Photovoltaikanlage ist bereits vorhanden – ein weiterer Schritt Richtung nachhaltiges Wohnen.
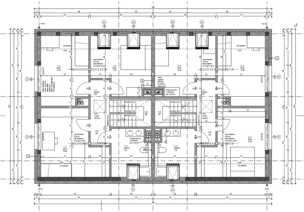
Aufteilung der Räume
Erdgeschoss (ca. 58,14 m²): - Offener Wohn-/Ess- und Kochbereich (29,76 m²) - Arbeitszimmer/Gästezimmer (9,55 m²) - Badezimmer mit Dusche und WC (5,74 m²) - Flur (7,59 m²) - Treppenhaus (5,5 m²)
Obergeschoss (ca. 57,58 m²): - Hauptschlafzimmer (16,84 m²) - Zwei weitere Schlafzimmer (je 13,85 m²) - Großes Badezimmer mit Fenster (7,82 m²) - Flur (5,23 m²)
Ein geräumiger Vorratsbehälter für Warmwasser (190 L) ist bereits installiert.
Anschlüsse & Ausstattung
- Stromanschluss (400V Kraftstrom)
- Städtische Wasser- und Abwasseranschlüsse
- Internetanschluss vorhanden
- Boden: Rohbeton – ideal für individuelle Gestaltung
- Terrasse vorhanden
Das Haus eignet sich ideal für Familien, Naturliebhaber oder alle, die urbanes Leben mit ländlicher Idylle vereinen möchten. Nutzen Sie die Gelegenheit, einen modernen und zukunftssicheren Wohntraum in außergewöhnlicher Lage zu verwirklichen.
Wir freuen uns über Ihr Interesse!
Details
Immobilienart: Doppelhaushälfte
Grundstückslage: Flaches Gelände
Gesamtfläche: 118,20 m²
Grundstücksfläche: 390,00 m²
Grundstücksform: Rechteckig
Nutzfläche: 118,20 m²
Eigentumsform des Grundstücks: Eigentum
Baujahr: 2023
Standard: Zum Ausbau vorbereitet
Zustand des Gebäudes: Zum Ausbau vorbereitet
Wandmaterial: Ziegel
Küchentyp: Mit Fenster
Anzahl der Badezimmer: 2
Zufahrtsstraße: Ruhige Straße
Anzahl der Etagen (inkl. Erdgeschoss): 1
Warmwasserquelle: –
Heizung: Wärmepumpe
Stromanschluss: Ja
Starkstrom 400V: Ja
Abwasser: Öffentliches Kanalsystem
Wasserquelle: Stadtwasser
Internet: Ja
Fenstertyp: Kunststoff
Dachbedeckung: Dachziegel
Fußbodenart: Beton
Zaunart: Maschendrahtzaun
Garten: Ja
Terrasse: Ja
Anzahl der Terrassen: 1
Nächster Wald: In der Nähe
Nächster Fluss: In der Nähe
Nächster Jachthafen: In der Nähe
Öffentliche Verkehrsmittel: In der Nähe
Hinweis
- Das erste Foto in unserer Galerie wurde leicht bearbeitet, um zu veranschaulichen, wie die Wohnung aussehen könnte – beispielsweise durch eine geänderte Wandfarbe. Die nachfolgenden Bilder zeigen den tatsächlichen Zustand der Immobilie.
- Der in Euro angegebene Preis entspricht dem Preis in Złoty, stellt jedoch aufgrund von Wechselkursschwankungen stets einen Näherungswert dar. In unseren Anzeigen ist stets auch der vom Verkäufer gewünschte Preis in Złoty angegeben.
Hinweise zur polnischen Immobilienpraxis:
- Begrenzte Objektinformationen: In Polen ist es üblich, dass Immobilienanzeigen nicht den genauen Standort der Immobilie preisgeben.
- Grundrisse: Detaillierte Grundrisse werden in Exposés nicht immer bereitgestellt.
Als Immobilienbüro bieten wir deutschsprachigen Kunden eine umfassende Betreuung an. Wir vertreten Sie als Käufer.
Wir arbeiten mit geprüften Partnern zusammen (Immobilienbewertung, Steuerliche und rechtliche Beratung, Vereidigte Übersetzungen, Renovierung sanierungsbedürftiger Objekte).
Bei Kapitalanlagen übernehmen wir auch die Verwaltung der Immobilie.
Persönliche Begleitung – transparent, kompetent und auf Deutsch.
Eigenschaften der Immobilie
- Garten
- Terrasse
- Gas
Diese Immobilien könnten Sie ebenfalls interessieren
Über uns
Willkommen bei Ihrem Immobilienpartner in Stettin und Westpommern!
Wir sind ein engagiertes Immobilienbüro mit langjähriger Erfahrung auf dem lokalen Markt. In unserem Angebot finden Sie eine große Auswahl an Immobilien in Stettin sowie attraktive Objekte an der polnischen Ostseeküste – ob zum Wohnen, als Kapitalanlage oder zur Feriennutzung.
Wir sprechen Deutsch und begleiten Sie gerne professionell durch den gesamten Kauf- oder Verkaufsprozess. Ob Wohnung, Haus, Grundstück oder Ferienimmobilie – wir finden garantiert die passende Adresse für Sie!
Besuchen Sie uns auf eine Tasse Kaffee in unserem Büro oder nehmen Sie einfach Kontakt mit uns auf. Wir freuen uns auf Sie!
Zusammenarbeit mit uns
Wir sind ein Immobilienbüro, das mit Maklerbüros in der Woiwodschaft Westpommern in Polen zusammenarbeitet. Dabei vertreten wir stets nur eine Seite der Transaktion – nämlich den Kunden aus Deutschland und den DACH-Ländern. In seinem Namen verhandeln wir den Preis, prüfen das Angebot und übernehmen sämtliche Formalitäten.
Auch nach dem Kauf stehen wir unseren Kunden beratend zur Seite und bleiben mit ihnen in Kontakt. Auf Wunsch unterstützen wir auch bei der Renovierung oder umfassenden Sanierung der Immobilie. Darüber hinaus bieten wir die Verwaltung von vermieteten Immobilien an – im Raum Stettin und der näheren Umgebung.
Wir legen großen Wert auf klare Regeln und ein faires Miteinander. Unsere Provision entspricht den in Polen üblichen Sätzen: 3.69% des Kaufpreises bei Wohnungen und Häusern sowie 6,15% bei Grundstücken. Die Provision wird beim Notar im Rahmen der Vertragsunterzeichnung fällig und bezahlt.
Wir arbeiten mit einer renommierten deutschsprachigen Notarkanzlei in Stettin zusammen.
Steuerliche Vorteile
Beim Erwerb von Bestandsimmobilien fällt lediglich eine geringe Grunderwerbsteuer an, die bei Immobilien auf dem Zweitmarkt 2% und bei Immobilien auf dem Erstmarkt 0% beträgt. Darüber hinaus richtet sich die Grundsteuer in Polen nach der Fläche und ist äußerst niedrig.