Charmantes Einfamilienhaus mit Garten und Ausbaupotenzial in ruhiger Lage in Stettin
281,000 € 2,810,000 €
Beschreibung
Freistehendes Einfamilienhaus mit Garten und Ausbaupotenzial im Grünen – Osiedle Arkońskie, Szczecin
Willkommen in einem charmanten, eingeschossigen Einfamilienhaus mit viel Platz für Ihre persönliche Freiheit! Gelegen in einer ruhigen, begehrten Einfamilienhaussiedlung von Szczecin – unweit von Wäldern, Parks und Erholungsgebieten – bietet dieses Haus die perfekte Umgebung für Familien oder Menschen, die Natur und Stadtleben miteinander verbinden möchten.
Lage – Natur und Stadt in Reichweite
Das Haus befindet sich im Stadtteil Osiedle Arkońskie – einer ruhigen Wohngegend mit hervorragender Infrastruktur. In nur wenigen Minuten erreichen Sie:
- den Chopin-Park (500 m),
- Park Arkoński und ein Krankenhaus (1.500 m),
- das beliebte Freibad Arkona sowie diverse Sportanlagen mit Stadion,
- Einkaufsgelegenheiten, Dienstleister, Kindergärten und Schulen,
- Haltestellen des öffentlichen Nahverkehrs,
- Freizeit- und Gesundheitseinrichtungen.
Wohnkomfort auf einer Ebene
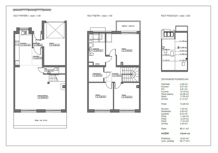
Die Immobilie bietet eine Wohnfläche von 115,65 m² auf einem großzügigen Grundstück von 542 m². Die durchdachte Raumaufteilung ermöglicht komfortables Wohnen ohne architektonische Barrieren.
Raumaufteilung:
- 5 helle, vielseitig nutzbare Zimmer,
- separate Küche mit praktischer, unterirdischer Vorratskammer,
- 2 Badezimmer,
- Flur und Nebenräume,
- Garage mit Wartungsgrube – ideal für Hobby-Heimwerker.
Die solide Konstruktion bietet viele Anpassungsmöglichkeiten an individuelle Wohnbedürfnisse.
Technischer Zustand & Ausstattung
Das Haus stammt aus dem Jahr 1958, befindet sich in gepflegtem, modernisierbarem Zustand und wird derzeit noch bewohnt.
Ausstattungsdetails:
- Dach: guter Zustand laut Eigentümer,
- Wärmedämmung: 10 cm Styropor,
- Fenster: Kunststoff mit Isolierverglasung (PVC),
- Böden: Laminat,
- Bäder: gefliest im älteren Stil,
- Heizung: Gasheizung + zusätzlicher Kamin für behagliche Winterabende,
- Medien: Strom, Stadtwasser, Kanalisation und Gas vorhanden.
Ausbau- und Modernisierungspotenzial
Laut Eigentümer besteht die Möglichkeit, eine zusätzliche Etage aufzustocken – erste Planungen samt aktiver Baugenehmigung liegen bereits vor. Im Preis ist ein vollständig ausgearbeiteter Modernisierungsplan enthalten, inklusive:
- Integration von Photovoltaikanlage und Wärmepumpe,
- durchdachtes Interior-Design zur optimalen Nutzung des Raumes.
Highlights auf einen Blick
- Ebenerdig – barrierefreies Wohnen für jedes Alter,
- 5 Zimmer + separate Küche – ideal für Familie, Homeoffice oder Gäste,
- bezugsfertiger Zustand – Anschlüsse vorhanden und funktionsfähig,
- großes Grundstück mit Garage – Freizeitfläche und Abstellmöglichkeiten inklusive,
- bereit für moderne Energielösungen und individuelle Gestaltung,
- ruhevolle Lage mit hohem Erholungswert – Wald, Wasser und Stadt in unmittelbarer Nähe.
„Morgens Kaffee im Garten, abends Kaminwärme – Spaziergänge im Wald – hier beginnt Lebensqualität ganz neu.“
Ein seltenes Angebot mit Substanz und Vision – vereinbaren Sie jetzt Ihren Besichtigungstermin und lassen Sie sich von der Atmosphäre vor Ort inspirieren!
Nebenkosten (Grundsteuer, Betriebskosten etc.) sind gesondert zu berücksichtigen.
Projekt für Modernisierung inklusive. Einige der letzten verfügbaren Häuser in dieser attraktiven Wohngegend!
Details
Haus zum Verkauf – Freistehendes Einfamilienhaus in Os. Arkońskie, Stettin
Grundangaben:
- Objekttyp: Einfamilienhaus (freistehend)
- Lage: Stettin, Stadtteil Os. Arkońskie
- Baujahr: 1958
- Gesamtfläche: 115,65 m²
- Grundstücksfläche: 542,00 m²
- Nutzfläche: 115,65 m²
- Etagen (inkl. Erdgeschoss): 1
Gebäude und Ausstattung:
- Bauweise: Massivbau (Ziegel)
- Zustand Gebäude: Gut
- Standard der Ausstattung: Gut
Technische Anschlüsse:
- Stromanschluss: Ja
- Gasanschluss: Ja
- Wasserversorgung: Städtisch
- Abwasser: Städtisch
Zusätzliche Ausstattung:
- Garage: Ja
- Anzahl Garagenplätze: 1
Kostenaufstellung:
- Notargebühren: ca. €828 (PLN 3.537)
- Grundbucheintrag: ca. €123 (PLN 525)
Ein gemütliches Einfamilienhaus mit guter Raumaufteilung und schönem Grundstück – ideal für Familien oder Paare, die ruhig, aber stadtnah wohnen möchten.
Hinweis
- Das erste Foto in unserer Galerie wurde leicht bearbeitet, um zu veranschaulichen, wie die Wohnung aussehen könnte – beispielsweise durch eine geänderte Wandfarbe. Die nachfolgenden Bilder zeigen den tatsächlichen Zustand der Immobilie.
- Der in Euro angegebene Preis entspricht dem Preis in Złoty, stellt jedoch aufgrund von Wechselkursschwankungen stets einen Näherungswert dar. In unseren Anzeigen ist stets auch der vom Verkäufer gewünschte Preis in Złoty angegeben.
Hinweise zur polnischen Immobilienpraxis:
- Begrenzte Objektinformationen: In Polen ist es üblich, dass Immobilienanzeigen nicht den genauen Standort der Immobilie preisgeben.
- Grundrisse: Detaillierte Grundrisse werden in Exposés nicht immer bereitgestellt.
Als Immobilienbüro bieten wir deutschsprachigen Kunden eine umfassende Betreuung an. Wir vertreten Sie als Käufer.
Wir arbeiten mit geprüften Partnern zusammen (Immobilienbewertung, Steuerliche und rechtliche Beratung, Vereidigte Übersetzungen, Renovierung sanierungsbedürftiger Objekte).
Bei Kapitalanlagen übernehmen wir auch die Verwaltung der Immobilie.
Persönliche Begleitung – transparent, kompetent und auf Deutsch.
Eigenschaften der Immobilie
- Gas
- Garage
- Keller
- Garten
Diese Immobilien könnten Sie ebenfalls interessieren
Über uns
Willkommen bei Ihrem Immobilienpartner in Stettin und Westpommern!
Wir sind ein engagiertes Immobilienbüro mit langjähriger Erfahrung auf dem lokalen Markt. In unserem Angebot finden Sie eine große Auswahl an Immobilien in Stettin sowie attraktive Objekte an der polnischen Ostseeküste – ob zum Wohnen, als Kapitalanlage oder zur Feriennutzung.
Wir sprechen Deutsch und begleiten Sie gerne professionell durch den gesamten Kauf- oder Verkaufsprozess. Ob Wohnung, Haus, Grundstück oder Ferienimmobilie – wir finden garantiert die passende Adresse für Sie!
Besuchen Sie uns auf eine Tasse Kaffee in unserem Büro oder nehmen Sie einfach Kontakt mit uns auf. Wir freuen uns auf Sie!
Zusammenarbeit mit uns
Wir sind ein Immobilienbüro, das mit Maklerbüros in der Woiwodschaft Westpommern in Polen zusammenarbeitet. Dabei vertreten wir stets nur eine Seite der Transaktion – nämlich den Kunden aus Deutschland und den DACH-Ländern. In seinem Namen verhandeln wir den Preis, prüfen das Angebot und übernehmen sämtliche Formalitäten.
Auch nach dem Kauf stehen wir unseren Kunden beratend zur Seite und bleiben mit ihnen in Kontakt. Auf Wunsch unterstützen wir auch bei der Renovierung oder umfassenden Sanierung der Immobilie. Darüber hinaus bieten wir die Verwaltung von vermieteten Immobilien an – im Raum Stettin und der näheren Umgebung.
Wir legen großen Wert auf klare Regeln und ein faires Miteinander. Unsere Provision entspricht den in Polen üblichen Sätzen: 3.69% des Kaufpreises bei Wohnungen und Häusern sowie 6,15% bei Grundstücken. Die Provision wird beim Notar im Rahmen der Vertragsunterzeichnung fällig und bezahlt.
Wir arbeiten mit einer renommierten deutschsprachigen Notarkanzlei in Stettin zusammen.
Steuerliche Vorteile
Beim Erwerb von Bestandsimmobilien fällt lediglich eine geringe Grunderwerbsteuer an, die bei Immobilien auf dem Zweitmarkt 2% und bei Immobilien auf dem Erstmarkt 0% beträgt. Darüber hinaus richtet sich die Grundsteuer in Polen nach der Fläche und ist äußerst niedrig.