Moderne Doppelhaushälften mit Garten in Oberende – ideal für Familien und Naturliebhaber
295,000 €
Beschreibung
Neubau-Doppelhaushälften mit Garten in Bezrzecze – familienfreundlich und modern
Zum Verkauf steht eine exklusive Wohnsiedlung mit sechs modernen Wohneinheiten in attraktiver Doppelhausbebauung in Bezrzecze – einem ruhigen, gut angebundenen Stadtteil mit hervorragender Infrastruktur.
Jede Einheit wird in hochwertiger Massivbauweise (Silikatblöcke) errichtet und erhält eine exzellente Wärmedämmung: 15 cm Styropor an den Außenwänden sowie PUR-Schaum-Dämmung im Dachbereich. Das Dach wird mit eleganten Keramikziegeln eingedeckt. Die weißen Kunststofffenster sorgen für angenehme Lichtverhältnisse in allen Räumen. Innen erhalten die Häuser glatte Gipsputzwände, die bereit für den individuellen Innenausbau sind.
Das gesamte Haus wird durch eine moderne, eigene Gasheizung beheizt. In allen Räumen ist eine energieeffiziente Fußbodenheizung installiert – für höchsten Wohnkomfort, insbesondere in der kälteren Jahreszeit.
Zusätzliche Highlights jeder Wohneinheit: - Zwei private Außenstellplätze pro Haus - Eigener Garten mit ca. 450 m² Fläche – ideal für Familien, Hobbygärtner oder entspannte Stunden im Freien - Durchdachte Raumaufteilung – perfekte Basis für individuelles Wohnen - Voraussichtliche Fertigstellung: Dezember 2025
Die Siedlung ist als abgeschlossenes, privates Wohngebiet geplant und bietet ein hohes Maß an Sicherheit und Privatsphäre. Die Umgebung zeichnet sich durch ihre Familienfreundlichkeit aus und bietet kurze Wege zu alltäglichen Annehmlichkeiten:
- Schulen und Kindergärten in der Nähe
- Gute Anbindung an den öffentlichen Nahverkehr
- Einkaufsmöglichkeiten und Supermärkte in wenigen Minuten erreichbar
Bezrzecze ist besonders bei jungen Familien und Berufspendlern beliebt – die ruhige Nachbarschaft vereint Natur und Stadtnähe und ermöglicht entspanntes Wohnen mit gleichzeitig schneller Erreichbarkeit des Stadtzentrums.
Kontaktieren Sie uns gerne für weitere Informationen oder einen persönlichen Besichtigungstermin vor Ort – wir freuen uns, Ihnen dieses attraktive Neubauprojekt näher vorzustellen.
Preis: ab ca. €105.600 (PLN 450.000) je Einheit
Details
Immobilienart: Doppelhaushälfte
Verfügbar ab: 11.02.2025
Alter Preis: 1.190.000 PLN
Gesamtfläche: 128,00 m²
Grundstücksfläche: 450,00 m²
Grundstücksform: Rechteckig
Wohnfläche: 128,00 m²
Grundstückseigentum: Eigentum
Hausart: Doppelhaushälfte
Baujahr: 2025
Ausstattungsstandard: Bauträgerstandard
Gebäudezustand: Bauträgerstandard
Wandmaterial: Betonblöcke
Küchentyp: Kochnische
Anzahl der Badezimmer: 2
Anzahl der WCs: 2
Etagenanzahl (inkl. Erdgeschoss): 1
Stromanschluss: Ja
Gasanschluss: Ja
Dachdeckung: Keramikziegel
Garten: Ja
Ankleidezimmer: Ja
Terrasse: Ja
Anzahl der Terrassen: 1
Terrassenfläche: 6 m²
Hinweis
- Das erste Foto in unserer Galerie wurde leicht bearbeitet, um zu veranschaulichen, wie die Wohnung aussehen könnte – beispielsweise durch eine geänderte Wandfarbe. Die nachfolgenden Bilder zeigen den tatsächlichen Zustand der Immobilie.
- Der in Euro angegebene Preis entspricht dem Preis in Złoty, stellt jedoch aufgrund von Wechselkursschwankungen stets einen Näherungswert dar. In unseren Anzeigen ist stets auch der vom Verkäufer gewünschte Preis in Złoty angegeben.
Hinweise zur polnischen Immobilienpraxis:
- Begrenzte Objektinformationen: In Polen ist es üblich, dass Immobilienanzeigen nicht den genauen Standort der Immobilie preisgeben.
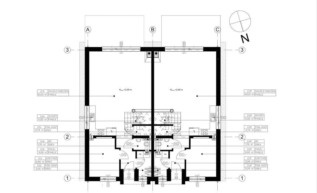
- Grundrisse: Detaillierte Grundrisse werden in Exposés nicht immer bereitgestellt.
Als Immobilienbüro bieten wir deutschsprachigen Kunden eine umfassende Betreuung an. Wir vertreten Sie als Käufer.
Wir arbeiten mit geprüften Partnern zusammen (Immobilienbewertung, Steuerliche und rechtliche Beratung, Vereidigte Übersetzungen, Renovierung sanierungsbedürftiger Objekte).
Bei Kapitalanlagen übernehmen wir auch die Verwaltung der Immobilie.
Persönliche Begleitung – transparent, kompetent und auf Deutsch.
Eigenschaften der Immobilie
- Gas
- Garten
- Garderobe
- Terrasse
- nahe der Grenze
Diese Immobilien könnten Sie ebenfalls interessieren
Über uns
Willkommen bei Ihrem Immobilienpartner in Stettin und Westpommern!
Wir sind ein engagiertes Immobilienbüro mit langjähriger Erfahrung auf dem lokalen Markt. In unserem Angebot finden Sie eine große Auswahl an Immobilien in Stettin sowie attraktive Objekte an der polnischen Ostseeküste – ob zum Wohnen, als Kapitalanlage oder zur Feriennutzung.
Wir sprechen Deutsch und begleiten Sie gerne professionell durch den gesamten Kauf- oder Verkaufsprozess. Ob Wohnung, Haus, Grundstück oder Ferienimmobilie – wir finden garantiert die passende Adresse für Sie!
Besuchen Sie uns auf eine Tasse Kaffee in unserem Büro oder nehmen Sie einfach Kontakt mit uns auf. Wir freuen uns auf Sie!
Zusammenarbeit mit uns
Wir sind ein Immobilienbüro, das mit Maklerbüros in der Woiwodschaft Westpommern in Polen zusammenarbeitet. Dabei vertreten wir stets nur eine Seite der Transaktion – nämlich den Kunden aus Deutschland und den DACH-Ländern. In seinem Namen verhandeln wir den Preis, prüfen das Angebot und übernehmen sämtliche Formalitäten.
Auch nach dem Kauf stehen wir unseren Kunden beratend zur Seite und bleiben mit ihnen in Kontakt. Auf Wunsch unterstützen wir auch bei der Renovierung oder umfassenden Sanierung der Immobilie. Darüber hinaus bieten wir die Verwaltung von vermieteten Immobilien an – im Raum Stettin und der näheren Umgebung.
Wir legen großen Wert auf klare Regeln und ein faires Miteinander. Unsere Provision entspricht den in Polen üblichen Sätzen: 3.69% des Kaufpreises bei Wohnungen und Häusern sowie 6,15% bei Grundstücken. Die Provision wird beim Notar im Rahmen der Vertragsunterzeichnung fällig und bezahlt.
Wir arbeiten mit einer renommierten deutschsprachigen Notarkanzlei in Stettin zusammen.
Steuerliche Vorteile
Beim Erwerb von Bestandsimmobilien fällt lediglich eine geringe Grunderwerbsteuer an, die bei Immobilien auf dem Zweitmarkt 2% und bei Immobilien auf dem Erstmarkt 0% beträgt. Darüber hinaus richtet sich die Grundsteuer in Polen nach der Fläche und ist äußerst niedrig.