Familienfreundliche 4-Zimmer-Wohnung mit Balkon in grüner Lage von Stettin-Zdroje
170,000 €
Beschreibung
4-Zimmer-Wohnung mit Balkon in grüner Lage von Zdroje
Willkommen in Ihrem neuen Zuhause – einer großzügigen und gut geschnittenen 4-Zimmer-Wohnung mit einer Gesamtfläche von ca. 78,7 m², gelegen in einem gepflegten Mehrfamilienhaus im beliebten Stadtteil Zdroje. Diese Immobilie eignet sich ideal für Familien und besticht durch ihre funktionale Raumaufteilung, angenehme Lichtverhältnisse sowie eine hervorragende Lage inmitten natürlicher und städtischer Infrastrukturen.
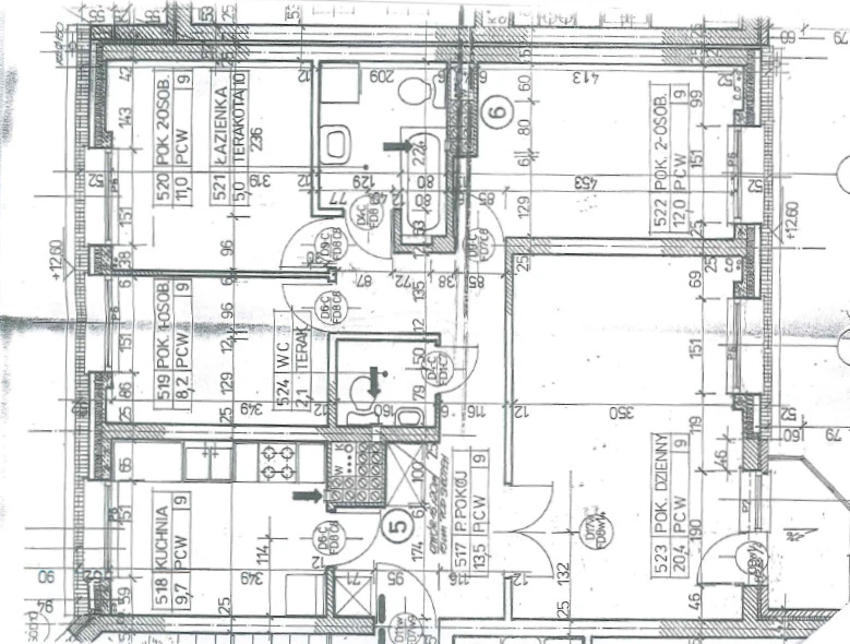
Raumaufteilung
- Wohnzimmer (ca. 20 m²) – hell und geräumig, mit Zugang zum Balkon (ca. 2 m²), Ausrichtung nach Westen
- 3 weitere Zimmer mit ca. 12 m², 11 m² und 8 m² – nutzbar als Schlaf-, Kinder- oder Arbeitszimmer
- Separate Küche mit Fenster (ca. 9,7 m²) – bietet ausreichend Platz für individuelle Gestaltung
- Badezimmer (ca. 5 m²) sowie separates WC (ca. 2 m²)
- Flur und Eingangsbereich mit einer Gesamtfläche von ca. 13 m²
Zusätzlich gehört ein praktischer Kellerraum (ca. 10 m²) mit Metalltür sowie ein gemeinschaftlicher Bereich zur Aufbewahrung von Kinderwagen/Fahrrädern zur Wohnung.
Licht und Ausblick
Die Fenster der Wohnung sind doppelt verglaste Kunststofffenster und lassen viel Tageslicht herein. Durch die Ost-West-Ausrichtung genießen Sie morgens und abends angenehme Sonnenstrahlen sowie einen beeindruckenden Ausblick – unter anderem auf die Wipfel des nahegelegenen Buchwaldes (Puszcza Bukowa).
Gebäude und Ausstattung
- Baujahr: 1993
- Bauweise: massive Ziegelbauweise
- Gebäudezustand: sehr gut
- Wohnung benötigt kleinere kosmetische Renovierungen
- Gebäude mit insgesamt 4 Etagen
- Gasanschluss vorhanden
- Gegensprechanlage vorhanden
- Parkplätze für Anwohner direkt am Gebäude
- Mietbare Garagen auf dem Gelände des Gebäudes verfügbar
Lage und Umgebung
Die Lage dieser Wohnung bietet eine perfekte Kombination aus Natur und urbaner Infrastruktur – ideal für Familien, Berufspendler und alle, die das Leben in ruhiger Umgebung mit guter Anbindung genießen möchten.
Alle wichtigen Einrichtungen des täglichen Bedarfs befinden sich in unmittelbarer Nähe:
- Schnellbahnhaltestelle und Bushaltestelle ca. 200 m entfernt – schnelle Verbindung ins Stadtzentrum
- Schule in ca. 300 m Entfernung
- Einkaufsmöglichkeiten ab ca. 200 m erreichbar
- Wochenmarkt „Ryneczek Zdroje“ ca. 800 m entfernt
- Post und Kirche in ca. 1 km Entfernung
- Der wunderschöne Buchwald (Puszcza Bukowa) ist nur etwa 2 km entfernt – perfekt für Spaziergänge, Ausflüge und Freizeitaktivitäten
Sonstiges
Die Wohnung kann auch von Nicht-EU-Bürgern erworben werden. Das Gebäude wird durch eine aktive Wohnungsbaugenossenschaft verwaltet.
Ein perfekter Ort zum Leben – ruhig, sonnig und mit viel Grün vor der Tür. Vereinbaren Sie noch heute Ihren Besichtigungstermin und lassen Sie sich vom Charme dieser Immobilie begeistern!
Monatliche Betriebskosten: ca. €282 (PLN 1.200)
Wir freuen uns auf Ihr Interesse!
Details
Wohnung in Zdroje – 78,70 m² mit 2 Bädern und Keller
Zum Verkauf steht eine großzügige 3-Zimmer-Wohnung mit einer Gesamtfläche von 78,70 m² im beliebten Stadtteil Zdroje in Stettin. Die Immobilie befindet sich im 1. Obergeschoss eines vierstöckigen Gebäudes aus dem Jahr 1993.
Merkmale der Immobilie:
- Typ: Wohnung
- Lage: Zdroje, Stettin
- Fläche: 78,70 m²
- Baujahr: 1993
- Bauweise: Ziegelbau (Massivbau)
- Zustand der Wohnung: Leichte Renovierungsarbeiten erforderlich
- Zustand des Gebäudes: Sehr gut
- Etagenanzahl: 4
- Etage der Wohnung: 1. Obergeschoss
- Keller: Vorhanden
- Fenster: Kunststofffenster
- Küche: Separate Küche mit Fenster
- Anzahl der Badezimmer: 2
- Gasanschluss: Vorhanden
- Gegensprechanlage: Vorhanden
Diese Wohnung bietet durch die durchdachte Raumaufteilung und die zwei Badezimmer ein hohes Maß an Wohnkomfort – ideal für Familien oder Paare, die Wert auf Platz und Gestaltungsmöglichkeiten legen.
Ein Kellerraum ist im Angebot enthalten – perfekt für zusätzlichen Stauraum.
Monatliches Hausgeld: ca. €235 (PLN 1.000)
Für weitere Informationen oder zur Vereinbarung eines Besichtigungstermins kontaktieren Sie uns gerne.
Hinweis
- Das erste Foto in unserer Galerie wurde leicht bearbeitet, um zu veranschaulichen, wie die Wohnung aussehen könnte – beispielsweise durch eine geänderte Wandfarbe. Die nachfolgenden Bilder zeigen den tatsächlichen Zustand der Immobilie.
- Der in Euro angegebene Preis entspricht dem Preis in Złoty, stellt jedoch aufgrund von Wechselkursschwankungen stets einen Näherungswert dar. In unseren Anzeigen ist stets auch der vom Verkäufer gewünschte Preis in Złoty angegeben.
Hinweise zur polnischen Immobilienpraxis:
- Begrenzte Objektinformationen: In Polen ist es üblich, dass Immobilienanzeigen nicht den genauen Standort der Immobilie preisgeben.
- Grundrisse: Detaillierte Grundrisse werden in Exposés nicht immer bereitgestellt.
Als Immobilienbüro bieten wir deutschsprachigen Kunden eine umfassende Betreuung an. Wir vertreten Sie als Käufer.
Wir arbeiten mit geprüften Partnern zusammen (Immobilienbewertung, Steuerliche und rechtliche Beratung, Vereidigte Übersetzungen, Renovierung sanierungsbedürftiger Objekte).
Bei Kapitalanlagen übernehmen wir auch die Verwaltung der Immobilie.
Persönliche Begleitung – transparent, kompetent und auf Deutsch.
Eigenschaften der Immobilie
- Keller
- Gas
- Balkon
Diese Immobilien könnten Sie ebenfalls interessieren
Über uns
Willkommen bei Ihrem Immobilienpartner in Stettin und Westpommern!
Wir sind ein engagiertes Immobilienbüro mit langjähriger Erfahrung auf dem lokalen Markt. In unserem Angebot finden Sie eine große Auswahl an Immobilien in Stettin sowie attraktive Objekte an der polnischen Ostseeküste – ob zum Wohnen, als Kapitalanlage oder zur Feriennutzung.
Wir sprechen Deutsch und begleiten Sie gerne professionell durch den gesamten Kauf- oder Verkaufsprozess. Ob Wohnung, Haus, Grundstück oder Ferienimmobilie – wir finden garantiert die passende Adresse für Sie!
Besuchen Sie uns auf eine Tasse Kaffee in unserem Büro oder nehmen Sie einfach Kontakt mit uns auf. Wir freuen uns auf Sie!
Zusammenarbeit mit uns
Wir sind ein Immobilienbüro, das mit Maklerbüros in der Woiwodschaft Westpommern in Polen zusammenarbeitet. Dabei vertreten wir stets nur eine Seite der Transaktion – nämlich den Kunden aus Deutschland und den DACH-Ländern. In seinem Namen verhandeln wir den Preis, prüfen das Angebot und übernehmen sämtliche Formalitäten.
Auch nach dem Kauf stehen wir unseren Kunden beratend zur Seite und bleiben mit ihnen in Kontakt. Auf Wunsch unterstützen wir auch bei der Renovierung oder umfassenden Sanierung der Immobilie. Darüber hinaus bieten wir die Verwaltung von vermieteten Immobilien an – im Raum Stettin und der näheren Umgebung.
Wir legen großen Wert auf klare Regeln und ein faires Miteinander. Unsere Provision entspricht den in Polen üblichen Sätzen: 3.69% des Kaufpreises bei Wohnungen und Häusern sowie 6,15% bei Grundstücken. Die Provision wird beim Notar im Rahmen der Vertragsunterzeichnung fällig und bezahlt.
Wir arbeiten mit einer renommierten deutschsprachigen Notarkanzlei in Stettin zusammen.
Steuerliche Vorteile
Beim Erwerb von Bestandsimmobilien fällt lediglich eine geringe Grunderwerbsteuer an, die bei Immobilien auf dem Zweitmarkt 2% und bei Immobilien auf dem Erstmarkt 0% beträgt. Darüber hinaus richtet sich die Grundsteuer in Polen nach der Fläche und ist äußerst niedrig.