Stettin: Modernes 3-Zimmer-Apartment mit Balkon, Terrasse und Garten in Toplage
257,000 €
Beschreibung
Stilvolles 3-Zimmer-Apartment mit Balkon, Terrasse und Garten in bester Lage von Stettin
Willkommen in Ihrem zukünftigen Zuhause! Dieses großzügige 3-Zimmer-Apartment bietet auf 77,55 m² Wohnfläche viel Raum für individuelle Gestaltungsideen. Die Wohnung liegt im 3. Obergeschoss eines modernen Neubaus im lebendigen, aufstrebenden Stadtteil Łasztownia, nur einen Steinwurf vom historischen Zentrum Stettins und dem Oderufer entfernt. Ideal für Familien, Stadtliebhaber, Investoren sowie Wassersportfreunde und Naturliebhaber.
Details zur Wohnung:
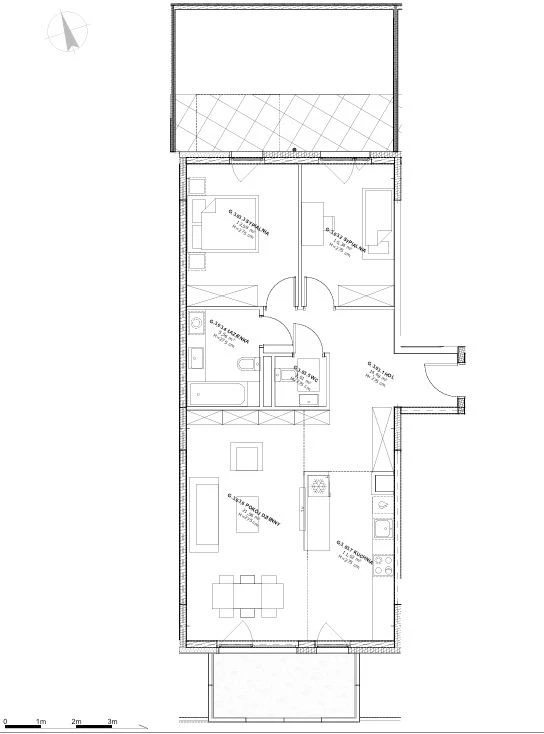
- Wohnzimmer (21,56 m²) mit Zugang zum Balkon (7,15 m²)
- Zwei Schlafzimmer (12,58 m² und 10,34 m²) mit Zugang zur Terrasse (9,81 m²) und privatem Garten (14,70 m²)
- Separate Küche (11,02 m²) – viel Platz zum Kochen und Gestalten
- Badezimmer (5,56 m²) sowie separates WC (2,01 m²)
- Großzügiger Flur (14,48 m²) mit viel Platz für Stauraum
Die Wohnung wird im entwicklungsfähigen Zustand (Rohbau) übergeben, sodass Sie Ihr neues Zuhause ganz nach Ihren Wünschen gestalten können.
Ausstattung und Architektur:
- Neubau aus dem Jahr 2024 – hochwertige Bauweise im modernen Stil
- Raumhöhe bis zu 2,76 m – großzügiges Raumgefühl
- Großflächige Panoramafenster sorgen für viel Licht und ein offenes Wohnambiente
- Balkon, Terrasse und eigener Garten bieten zusätzlichen Komfort
- Eleganter Eingangsbereich und hochwertige Gemeinschaftsflächen
- Granitwege mit integrierter Beleuchtung schaffen eine exklusive Atmosphäre
- Barrierefreie Zugänge für Senioren und Menschen mit eingeschränkter Mobilität
- Fahrradboxen und Fahrradräume für Bewohner im Gebäude
- Gebäude mit Fahrstuhl, Alarmanlage, Videoüberwachung sowie Gegensprechanlage
Zusätzliche Optionen (separat erwerbbar):
- Tiefgaragenstellplätze im beheizten Parkhaus
- Kellerabteile
- Fahrradboxen
Umgebung und Infrastruktur:
Die Lage bietet ideale Bedingungen für urbanes Wohnen mit Nähe zur Natur:
- Direkt an der Oder gelegen – perfekter Ausgangspunkt für Spaziergänge und Freizeitaktivitäten
- Nur wenige Gehminuten zur Altstadt und dem Zentrum von Stettin
- Exzellente Verkehrsanbindung: Straßenbahn, Bus, Hauptbahnhof (PKP), Busbahnhof (PKS)
- Einkaufsmöglichkeiten in unmittelbarer Nähe (u.a. Markt Tobruk, Einkaufszentrum Kaskada)
- Bildungsangebote in der Umgebung: Universitäten (PUM, ZUT, Universität Stettin), Schulen, Kindergärten
- Großes Kulturangebot: Morskie Centrum Nauki, Oper, Nationalmuseum, Philharmonie, Theater u.v.m.
- Optimale Grundversorgung mit Apotheken, Banken, Gastronomie und Spielplätzen in der Nähe
- Viele öffentliche Parkplätze und überdurchschnittlich viele Tiefgaragenplätze im Gebäude
Ein wunderbares Angebot für Eigennutzer und Kapitalanleger gleichermaßen – attraktiv dank Lage, Qualität und vielseitigem Nutzungspotenzial.
Verfügbar ab dem 18.08.2025 – reservieren Sie jetzt Ihr künftiges Zuhause oder Ihre nächste Investition!
Details
Wohnung in attraktiver Lage auf der Łasztownia-Insel
Verfügbar ab: 18.08.2025
Wohnfläche: 77,55 m²
Gebäudeart: Apartmenthaus
Baujahr: 2024
Ausbaustandard: Rohbau des Bauträgers
Wandmaterial: Silikat
Etagenanzahl (inkl. Erdgeschoss): 5
Raumhöhe: 275 cm
Raumaufteilung
- Wohnzimmer: 21,56 m²
- Zimmer 2: 12,58 m²
- Zimmer 3: 10,34 m²
- Küche (separat): 11,02 m²
- Badezimmer: 5,56 m²
- WC: 1 separates WC
Ausstattung
- Heizung und Warmwasser: Fernwärme
- Fußbodenart: Beton
- Aufzug: vorhanden
- Sicherheitsmerkmale: Alarmanlage, Videoüberwachung, Gegensprechanlage
- Außenbereiche: 1 Balkon, 1 Terrasse, Garten
- Garage: vorhanden
Lagevorteile
Zentrale und zugleich naturnahe Lage auf der Insel Łasztownia – in unmittelbarer Nähe befinden sich:
- Flussufer
- Geschäft
- Kindergarten
- Grundschule
- Hochschule
- Bahnhof (PKP)
- Busbahnhof (PKS)
- Marina
- Öffentliche Verkehrsmittel
- Apotheke
- Gastronomiebetriebe
- Bank
- Spielplatz
Ideal für alle, die urbanes Wohnen in Kombination mit Nähe zur Natur und guter Infrastruktur suchen.
Hinweis
- Das erste Foto in unserer Galerie wurde leicht bearbeitet, um zu veranschaulichen, wie die Wohnung aussehen könnte – beispielsweise durch eine geänderte Wandfarbe. Die nachfolgenden Bilder zeigen den tatsächlichen Zustand der Immobilie.
- Der in Euro angegebene Preis entspricht dem Preis in Złoty, stellt jedoch aufgrund von Wechselkursschwankungen stets einen Näherungswert dar. In unseren Anzeigen ist stets auch der vom Verkäufer gewünschte Preis in Złoty angegeben.
Hinweise zur polnischen Immobilienpraxis:
- Begrenzte Objektinformationen: In Polen ist es üblich, dass Immobilienanzeigen nicht den genauen Standort der Immobilie preisgeben.
- Grundrisse: Detaillierte Grundrisse werden in Exposés nicht immer bereitgestellt.
Als Immobilienbüro bieten wir deutschsprachigen Kunden eine umfassende Betreuung an. Wir vertreten Sie als Käufer.
Wir arbeiten mit geprüften Partnern zusammen (Immobilienbewertung, Steuerliche und rechtliche Beratung, Vereidigte Übersetzungen, Renovierung sanierungsbedürftiger Objekte).
Bei Kapitalanlagen übernehmen wir auch die Verwaltung der Immobilie.
Persönliche Begleitung – transparent, kompetent und auf Deutsch.
Eigenschaften der Immobilie
- Aufzug
- Garage
- Garten
- Terrasse
- Balkon
Diese Immobilien könnten Sie ebenfalls interessieren
Über uns
Willkommen bei Ihrem Immobilienpartner in Stettin und Westpommern!
Wir sind ein engagiertes Immobilienbüro mit langjähriger Erfahrung auf dem lokalen Markt. In unserem Angebot finden Sie eine große Auswahl an Immobilien in Stettin sowie attraktive Objekte an der polnischen Ostseeküste – ob zum Wohnen, als Kapitalanlage oder zur Feriennutzung.
Wir sprechen Deutsch und begleiten Sie gerne professionell durch den gesamten Kauf- oder Verkaufsprozess. Ob Wohnung, Haus, Grundstück oder Ferienimmobilie – wir finden garantiert die passende Adresse für Sie!
Besuchen Sie uns auf eine Tasse Kaffee in unserem Büro oder nehmen Sie einfach Kontakt mit uns auf. Wir freuen uns auf Sie!
Zusammenarbeit mit uns
Wir sind ein Immobilienbüro, das mit Maklerbüros in der Woiwodschaft Westpommern in Polen zusammenarbeitet. Dabei vertreten wir stets nur eine Seite der Transaktion – nämlich den Kunden aus Deutschland und den DACH-Ländern. In seinem Namen verhandeln wir den Preis, prüfen das Angebot und übernehmen sämtliche Formalitäten.
Auch nach dem Kauf stehen wir unseren Kunden beratend zur Seite und bleiben mit ihnen in Kontakt. Auf Wunsch unterstützen wir auch bei der Renovierung oder umfassenden Sanierung der Immobilie. Darüber hinaus bieten wir die Verwaltung von vermieteten Immobilien an – im Raum Stettin und der näheren Umgebung.
Wir legen großen Wert auf klare Regeln und ein faires Miteinander. Unsere Provision entspricht den in Polen üblichen Sätzen: 3.69% des Kaufpreises bei Wohnungen und Häusern sowie 6,15% bei Grundstücken. Die Provision wird beim Notar im Rahmen der Vertragsunterzeichnung fällig und bezahlt.
Wir arbeiten mit einer renommierten deutschsprachigen Notarkanzlei in Stettin zusammen.
Steuerliche Vorteile
Beim Erwerb von Bestandsimmobilien fällt lediglich eine geringe Grunderwerbsteuer an, die bei Immobilien auf dem Zweitmarkt 2% und bei Immobilien auf dem Erstmarkt 0% beträgt. Darüber hinaus richtet sich die Grundsteuer in Polen nach der Fläche und ist äußerst niedrig.