Modernes 2-Zimmer-Apartment mit Terrasse und Garten in Hafenlage von Stettin
168,000 €
Beschreibung
Stilvoll wohnen in moderner Hafenlage: 2-Zimmer-Wohnung mit Ankleide, Terrasse und Garten
Erleben Sie urbanen Komfort kombiniert mit Naturverbundenheit – dieses charmante 2-Zimmer-Apartment im Rohbauzustand befindet sich in einem exklusiven Neubau im aufstrebenden Hafenviertel Łasztownia in Stettin und überzeugt mit moderner Architektur und durchdachtem Wohnkonzept.
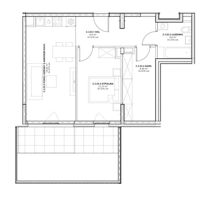
Raumaufteilung & Highlights
Die Wohnung mit einer Gesamtfläche von 52,48 m² befindet sich im 3. Obergeschoss eines hochwertigen Neubaus und bietet:
- Wohnbereich mit offener Küche – 18,92 m²
- Schlafzimmer – 11,77 m²
- Großzügige Ankleide – 8,59 m²
- Badezimmer – 4,60 m²
- Einladender Flur – 8,60 m²
- Terrasse – 9,93 m²
- Privatgarten – 10,61 m²
Diese attraktive Immobilie bietet Ihnen die Möglichkeit, den Innenraum ganz nach Ihren eigenen Wünschen und Stilvorstellungen zu gestalten – ideal für Individualisten oder kreative Investoren.
Moderne Architektur & Ausstattung auf hohem Niveau
- Hochwertig errichteter Apartmentkomplex mit moderner Fassade
- Hohe Räume bis zu 2,76 m Höhe und großzügige Fensterfronten für viel Tageslicht
- Jede Einheit mit eigenem Balkon, Terrasse oder Garten
- Elegante gemeinschaftliche Bereiche mit stilvoller Ausstattung
- Außenbereiche mit Pflasterung aus Granitstein und integrierten Lichtstreifen im Boden
- Fahrradabstellräume im Gebäude für mehr Komfort
- Barrierefreier Zugang – ideal für Senioren oder Menschen mit eingeschränkter Mobilität
- Gewerbeflächen im Erdgeschoss des Gebäudes für zusätzliche Annehmlichkeiten
- Ausreichend Tiefgaragenstellplätze und öffentliche Parkmöglichkeiten in der Umgebung
Zusätzliche Kaufoptionen
Optional besteht die Möglichkeit, einen Tiefgaragenstellplatz, einen Kellerraum sowie einen Fahrradstellplatz zu erwerben.
Lage – Ein Ort im Wandel mit Zukunft
Łasztownia ist eine der spannendsten und sich dynamisch entwickelnden Stadtlagen Stettins: direkt an der Oder, fußläufig zur Altstadt und in der Nähe des Stadtzentrums.
Die Anbindung an den öffentlichen Nahverkehr ist exzellent – Straßenbahnen, Busse, der Hauptbahnhof sowie der zentrale Busbahnhof sind schnell erreichbar. In unmittelbarer Nähe befinden sich:
- Einkaufsmöglichkeiten (z. B. Markt Tobruk, Einkaufszentrum Kaskada)
- Bildungseinrichtungen wie Schulen, Kindergärten und Universitäten (u. a. PUM, ZUT, Universität Stettin)
- Zahlreiche Restaurants, Cafés und Bars
- Kulturelle Highlights wie das Wissenschaftszentrum, die Oper im Schloss, das Nationalmuseum, die Philharmonie und mehrere Theater
Die Lage ist besonders attraktiv für Menschen, die das Stadtleben schätzen, Natur und Wasser lieben oder sportlich aktiv sind – etwa beim Wassersport oder Radfahren entlang des Flusses.
Ideal zur Eigennutzung oder als Kapitalanlage
Ob als neues Zuhause für Singles oder Paare, als stilvolle Citywohnung oder als Investition mit Vermietungspotenzial – diese Immobilie überzeugt:
- Top-Lage mit urbanem Lifestyle & Naturzugang
- Raum zur individuellen Gestaltung
- Neue, moderne Architektur auf hohem Qualitätsniveau
- Hohe Vermietbarkeit in gefragter Lage
Verfügbar ab dem 18.08.2025.
Entdecken Sie, wie stilvolles Wohnen in einem zukunftsorientierten Quartier aussieht – und erfüllen Sie sich Ihren Wohntraum oder schaffen Sie Wert durch eine smarte Kapitalanlage.
Details
Moderne Wohnung mit Terrasse in Toplage auf der Łasztownia-Insel
Verfügbar ab: 18.08.2025
Standort: Stadtteil Łasztownia
Wohnfläche: 52,38 m²
Gebäudetyp: Apartmenthaus
Baujahr: 2024
Bauzustand: Neubau – Entwicklerstandard
Bauweise: Silikatwände
Stockwerke im Gebäude: 6
Raumhöhe: 265 cm
Etagenlage: Nicht angegeben
Raumaufteilung
- Wohnzimmer mit Küchenzeile: 18,92 m²
- Schlafzimmer: 11,77 m²
- Badezimmer: 4,60 m²
- Terrasse: 1 Terrasse
- Ankleide: vorhanden
- Küche: offener Küchenbereich (Küchenzeile)
Ausstattung und Merkmale
- Fußboden: Beton
- Aufzug: vorhanden
- Garage: vorhanden
- Garten (zur Wohnung gehörend): vorhanden
- Terrasse: ja
- Heizung: Fernwärme
- Warmwasser: Fernwärmeversorgung
- Sicherheitsmerkmale: Alarmanlage, Videoüberwachung, Gegensprechanlage
Lage und Umgebung
Die Immobilie befindet sich auf der attraktiven Łasztownia-Insel, in der Nähe zahlreicher Einrichtungen des täglichen Bedarfs:
- Flussufer in direkter Nähe
- Einkaufsmöglichkeiten, Apotheke und Gastronomie in der Umgebung
- Kindergärten, Grundschule sowie Hochschule in Reichweite
- Öffentlicher Nahverkehr gut erreichbar — nahegelegene Bushaltestelle und Bahnhof (PKS und PKP)
- Marina und Spielplatz ebenfalls in kurzer Entfernung
Ein modernes Zuhause in außergewöhnlicher Lage – ideal für alle, die urbanes Leben mit Nähe zur Natur verbinden möchten.
Monatliche Kosten (Hausverwaltung etc.): ca. €180 (PLN 770)
Stellplatz in der Garage: €16.900 (PLN 72.000)
Aufpreis für Garten zur Wohnung: €9.360 (PLN 40.000)
Aufpreis für Terrasse: €6.160 (PLN 26.320)
Hinweis
- Das erste Foto in unserer Galerie wurde leicht bearbeitet, um zu veranschaulichen, wie die Wohnung aussehen könnte – beispielsweise durch eine geänderte Wandfarbe. Die nachfolgenden Bilder zeigen den tatsächlichen Zustand der Immobilie.
- Der in Euro angegebene Preis entspricht dem Preis in Złoty, stellt jedoch aufgrund von Wechselkursschwankungen stets einen Näherungswert dar. In unseren Anzeigen ist stets auch der vom Verkäufer gewünschte Preis in Złoty angegeben.
Hinweise zur polnischen Immobilienpraxis:
- Begrenzte Objektinformationen: In Polen ist es üblich, dass Immobilienanzeigen nicht den genauen Standort der Immobilie preisgeben.
- Grundrisse: Detaillierte Grundrisse werden in Exposés nicht immer bereitgestellt.
Als Immobilienbüro bieten wir deutschsprachigen Kunden eine umfassende Betreuung an. Wir vertreten Sie als Käufer.
Wir arbeiten mit geprüften Partnern zusammen (Immobilienbewertung, Steuerliche und rechtliche Beratung, Vereidigte Übersetzungen, Renovierung sanierungsbedürftiger Objekte).
Bei Kapitalanlagen übernehmen wir auch die Verwaltung der Immobilie.
Persönliche Begleitung – transparent, kompetent und auf Deutsch.
Eigenschaften der Immobilie
- Aufzug
- Garage
- Garten
- Garderobe
- Terrasse
- Balkon
Diese Immobilien könnten Sie ebenfalls interessieren
Über uns
Willkommen bei Ihrem Immobilienpartner in Stettin und Westpommern!
Wir sind ein engagiertes Immobilienbüro mit langjähriger Erfahrung auf dem lokalen Markt. In unserem Angebot finden Sie eine große Auswahl an Immobilien in Stettin sowie attraktive Objekte an der polnischen Ostseeküste – ob zum Wohnen, als Kapitalanlage oder zur Feriennutzung.
Wir sprechen Deutsch und begleiten Sie gerne professionell durch den gesamten Kauf- oder Verkaufsprozess. Ob Wohnung, Haus, Grundstück oder Ferienimmobilie – wir finden garantiert die passende Adresse für Sie!
Besuchen Sie uns auf eine Tasse Kaffee in unserem Büro oder nehmen Sie einfach Kontakt mit uns auf. Wir freuen uns auf Sie!
Zusammenarbeit mit uns
Wir sind ein Immobilienbüro, das mit Maklerbüros in der Woiwodschaft Westpommern in Polen zusammenarbeitet. Dabei vertreten wir stets nur eine Seite der Transaktion – nämlich den Kunden aus Deutschland und den DACH-Ländern. In seinem Namen verhandeln wir den Preis, prüfen das Angebot und übernehmen sämtliche Formalitäten.
Auch nach dem Kauf stehen wir unseren Kunden beratend zur Seite und bleiben mit ihnen in Kontakt. Auf Wunsch unterstützen wir auch bei der Renovierung oder umfassenden Sanierung der Immobilie. Darüber hinaus bieten wir die Verwaltung von vermieteten Immobilien an – im Raum Stettin und der näheren Umgebung.
Wir legen großen Wert auf klare Regeln und ein faires Miteinander. Unsere Provision entspricht den in Polen üblichen Sätzen: 3.69% des Kaufpreises bei Wohnungen und Häusern sowie 6,15% bei Grundstücken. Die Provision wird beim Notar im Rahmen der Vertragsunterzeichnung fällig und bezahlt.
Wir arbeiten mit einer renommierten deutschsprachigen Notarkanzlei in Stettin zusammen.
Steuerliche Vorteile
Beim Erwerb von Bestandsimmobilien fällt lediglich eine geringe Grunderwerbsteuer an, die bei Immobilien auf dem Zweitmarkt 2% und bei Immobilien auf dem Erstmarkt 0% beträgt. Darüber hinaus richtet sich die Grundsteuer in Polen nach der Fläche und ist äußerst niedrig.