Modernes Doppelhaus in Oberende mit Garage, 4 Zimmern und hochwertiger Ausstattung
248,000 € 257,000 €
Beschreibung
Modernes Doppelhaus in Bezrzecze – Ihr neues Zuhause in hochwertiger Ausführung
Zum Verkauf steht ein modernes Doppelhaus in attraktiver Lage von Bezrzecze. Die beiden Haushälften sind durch eine doppelte tragende Wand mit einer Dämmschicht aus Styropor (18 + 3 + 18 cm) voneinander getrennt – für maximale Schalldämmung und Privatsphäre.
Der Verkauf erfolgt auf Basis eines Bauträgervertrags sowie über ein Treuhandkonto – für Ihre Sicherheit.
Durchdachte, funktionale Raumaufteilung – keine Dachschrägen im Obergeschoss!
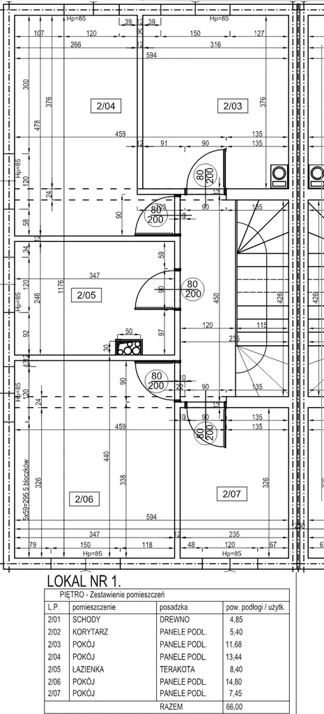
Erdgeschoss: - Heller Wohnbereich mit offener Küche - Eingangsbereich/Flur - Badezimmer mit Dusche - Integrierte Garage
Obergeschoss: - Vier geräumige Zimmer - Großes Badezimmer - Flur mit Zugang zum Dachboden
Zusätzlich verfügbar: Der großzügige Dachboden ermöglicht die Gestaltung eines weiteren Raumes mit ca. 30 m² Wohnfläche (Einbau einer festen Treppe möglich – in Eigenregie) oder kann als Abstellfläche genutzt werden.
Ausstattung im gehobenen Standard: - Fußbodenheizung in allen Räumen - Wärmepumpe Atlantic - Kontrollierte Wohnraumlüftung mit Wärmerückgewinnung (Rekuperation) - Vorinstallation für Photovoltaik - Außenwände: 24 cm tragende Wand + 20 cm Dämmung - Dreifach verglaste Fenster mit warmer Montage: außen anthrazit, innen weiß - Schornsteinsystem mit Anschlussmöglichkeit für Kamin - Maschinenverputzte Gipswände - Ausgeführte Betontreppe ins Obergeschoss - Einbruchhemmende Haustüre von Wikęd - Segmentgaragentor mit Fernbedienung, gedämmt – Hersteller: Wiśniowski - Vorinstallierte Elektro- sowie Wasser- und Abwasserleitungen - Alarmanlage sowie R-TV- und Internetverkabelung - Dachdeckung: glasierte Keramikdachziegel – Roben Monza Plus - Dachdämmung mit Zellulose oder PUR-Schaum - Ausziehbare Holztreppe zum Dachboden
Außenanlagen: - Zufahrt und Hauseingang aus Pflastersteinen - Terrasse aus Betonpflaster - Das Grundstück ist eben gestaltet - Gartenbereiche zwischen den Nachbarn mit Zaun eingefasst - Außenputz: Silikon-Silikat-Fassade
Die Hausfassade wird in weiß oder gebrochenem Weiß mit grauen bzw. anthrazitfarbenen Elementen gestaltet – modern und zeitlos zugleich.
Wir laden Sie herzlich zur Besichtigung ein – überzeugen Sie sich selbst von dieser besonderen Immobilie!
Details
Immobilienangebot – Doppelhaushälfte im modernen Baustandard
Objekttyp: Doppelhaushälfte
Baujahr: 2025
Gesamtfläche: 127,30 m²
Wohnfläche: 127,30 m²
Grundstücksfläche: 290,00 m²
Grundstücksform: Rechteckig
Grundstücksbreite: 12,00 m
Grundstückslänge: 23,35 m
Lage des Grundstücks: Ebenes Gelände
Gebäudestandard: Entwicklerstandard
Bauweise: Betonblock
Fenster: Kunststofffenster
Dachdeckung: Keramikdachziegel
Dachgeschoss: Ausgebaut und nutzbar
Außeneinfriedung: Maschendrahtzaun
Etagenanzahl: 2 (inkl. Erdgeschoss)
Zimmeraufteilung:
- Küche: Offene Küche
- Badezimmeranzahl: 2
- Badezimmergrößen: 3 m² + 8 m²
- Garderobe: Ja
- Kamin: Ja
Heizung: Wärmepumpe
Warmwasserbereitung: –
Energieversorgung: Strom vorhanden
Starkstromanschluss (400V): Ja
Wasserquelle: Brunnen
Abwasserentsorgung: Städtisch
Belüftung: Ja
Zugang/Anfahrt: Ruhige Straße
Garage: Ja
Stellplätze in der Garage: 1
Internetanschluss: Ja
Kabel-TV-Anschluss: Ja
Alarmanlage: Ja
Türsprechanlage: Ja
Terrasse: Ja
Anzahl Terrassen: 1
Terrassenfläche: 12 m²
Garten: Ja
Infrastruktur in der Nähe:
- Wald: In der Nähe
- Einkaufsmöglichkeiten: In der Nähe
- Krippe: In der Nähe
- Kindergarten: In der Nähe
- Grundschule: In der Nähe
- Öffentliche Verkehrsmittel: In der Nähe
- Apotheke: In der Nähe
- Gastronomie: In der Nähe
- Fitnessstudio: In der Nähe
- Bank: In der Nähe
Zusätzliche Ausstattung:
- Voll ausgebautes Dachgeschoss
- Offene Wohnküche
- Modernes Belüftungssystem
- Einbau eines Kamins möglich
- Sicherheitsalarmanlage
- Separater Garderobenbereich
Bemerkung:
Das Objekt wird im Entwicklerstandard angeboten, was dem Käufer individuelle Ausstattungsmöglichkeiten bietet. Die moderne Doppelhaushälfte besticht durch ihre durchdachte Raumaufteilung, energieeffiziente Wärmepumpe und ruhige Lage mit sehr guter Infrastruktur in unmittelbarer Umgebung. Ideal für Familien, die urbanes Wohnen in naturnaher Umgebung suchen.
Hinweis
- Das erste Foto in unserer Galerie wurde leicht bearbeitet, um zu veranschaulichen, wie die Wohnung aussehen könnte – beispielsweise durch eine geänderte Wandfarbe. Die nachfolgenden Bilder zeigen den tatsächlichen Zustand der Immobilie.
- Der in Euro angegebene Preis entspricht dem Preis in Złoty, stellt jedoch aufgrund von Wechselkursschwankungen stets einen Näherungswert dar. In unseren Anzeigen ist stets auch der vom Verkäufer gewünschte Preis in Złoty angegeben.
Hinweise zur polnischen Immobilienpraxis:
- Begrenzte Objektinformationen: In Polen ist es üblich, dass Immobilienanzeigen nicht den genauen Standort der Immobilie preisgeben.
- Grundrisse: Detaillierte Grundrisse werden in Exposés nicht immer bereitgestellt.
Als Immobilienbüro bieten wir deutschsprachigen Kunden eine umfassende Betreuung an. Wir vertreten Sie als Käufer.
Wir arbeiten mit geprüften Partnern zusammen (Immobilienbewertung, Steuerliche und rechtliche Beratung, Vereidigte Übersetzungen, Renovierung sanierungsbedürftiger Objekte).
Bei Kapitalanlagen übernehmen wir auch die Verwaltung der Immobilie.
Persönliche Begleitung – transparent, kompetent und auf Deutsch.
Eigenschaften der Immobilie
- Garage
- Garten
- Garderobe
- Kamin
- Terrasse
- nahe der Grenze
- Gas
Diese Immobilien könnten Sie ebenfalls interessieren
Über uns
Willkommen bei Ihrem Immobilienpartner in Stettin und Westpommern!
Wir sind ein engagiertes Immobilienbüro mit langjähriger Erfahrung auf dem lokalen Markt. In unserem Angebot finden Sie eine große Auswahl an Immobilien in Stettin sowie attraktive Objekte an der polnischen Ostseeküste – ob zum Wohnen, als Kapitalanlage oder zur Feriennutzung.
Wir sprechen Deutsch und begleiten Sie gerne professionell durch den gesamten Kauf- oder Verkaufsprozess. Ob Wohnung, Haus, Grundstück oder Ferienimmobilie – wir finden garantiert die passende Adresse für Sie!
Besuchen Sie uns auf eine Tasse Kaffee in unserem Büro oder nehmen Sie einfach Kontakt mit uns auf. Wir freuen uns auf Sie!
Zusammenarbeit mit uns
Wir sind ein Immobilienbüro, das mit Maklerbüros in der Woiwodschaft Westpommern in Polen zusammenarbeitet. Dabei vertreten wir stets nur eine Seite der Transaktion – nämlich den Kunden aus Deutschland und den DACH-Ländern. In seinem Namen verhandeln wir den Preis, prüfen das Angebot und übernehmen sämtliche Formalitäten.
Auch nach dem Kauf stehen wir unseren Kunden beratend zur Seite und bleiben mit ihnen in Kontakt. Auf Wunsch unterstützen wir auch bei der Renovierung oder umfassenden Sanierung der Immobilie. Darüber hinaus bieten wir die Verwaltung von vermieteten Immobilien an – im Raum Stettin und der näheren Umgebung.
Wir legen großen Wert auf klare Regeln und ein faires Miteinander. Unsere Provision entspricht den in Polen üblichen Sätzen: 3.69% des Kaufpreises bei Wohnungen und Häusern sowie 6,15% bei Grundstücken. Die Provision wird beim Notar im Rahmen der Vertragsunterzeichnung fällig und bezahlt.
Wir arbeiten mit einer renommierten deutschsprachigen Notarkanzlei in Stettin zusammen.
Steuerliche Vorteile
Beim Erwerb von Bestandsimmobilien fällt lediglich eine geringe Grunderwerbsteuer an, die bei Immobilien auf dem Zweitmarkt 2% und bei Immobilien auf dem Erstmarkt 0% beträgt. Darüber hinaus richtet sich die Grundsteuer in Polen nach der Fläche und ist äußerst niedrig.