Moderne Maisonette mit Garten in Mierzyn – Erstbezug in familienfreundlicher Lage
235,000 €
Beschreibung
Maisonette-Wohnung mit Gartenanteil in beliebter Wohngegend in Stettin – im Erstbezug
Zum Verkauf steht eine moderne, zweistöckige 5-Zimmer-Wohnung im Erstbezugszustand, gelegen in einem attraktiven und familienfreundlichen Wohnviertel von Stettin. Die Wohnung bietet ein durchdachtes Raumkonzept, eine großzügige Gartenfläche von ca. 120 m² sowie einen hohen Ausbaustandard.
Wohnfläche: 103,58 m²
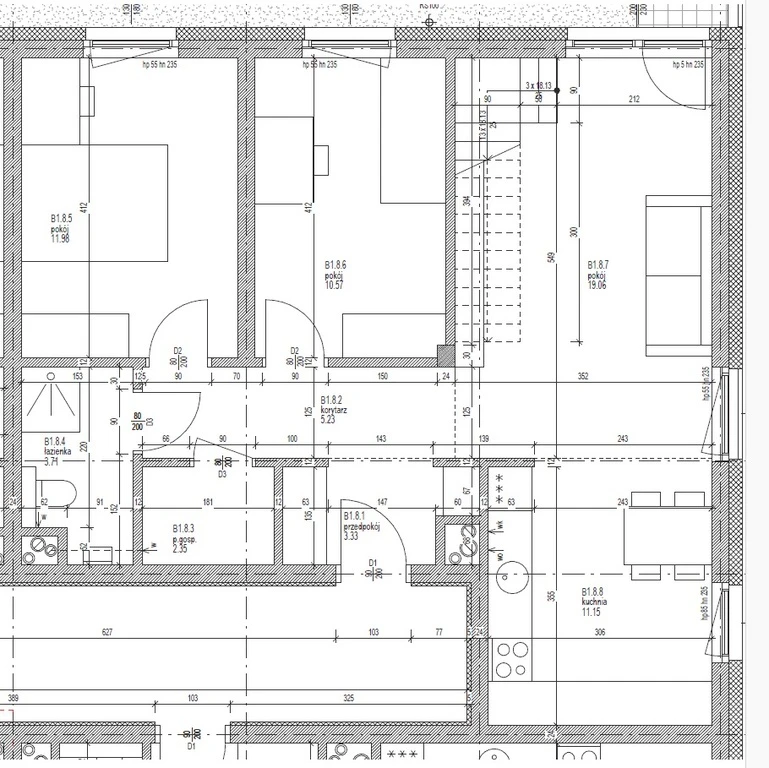
Ebene I:
- Helles Wohnzimmer mit offener Küche – ca. 30 m²
- Zimmer – ca. 10,57 m²
- Zimmer – ca. 12,57 m²
- Hauswirtschaftsraum – ca. 2,35 m²
- Badezimmer – ca. 3,74 m²
- Flur mit Eingangsbereich
Ebene II:
- Schlafzimmer – ca. 10,57 m²
- Schlafzimmer mit Zugang zum Balkon – ca. 10,1 m²
- Badezimmer – ca. 6,21 m²
- Hauswirtschaftsraum – ca. 5,79 m²
- Flur
Ausstattung im Erstbezugsstandard:
- Dreifach verglaste Fenster mit Lüftungselementen
- Maschinenverputzte Gipswände
- Installationen (Elektro, Wasser-/Abwasser, Heizung) fertig vorbereitet
- Vorinstallierte TV- und Internetanschlüsse
- Flachheizkörper in den Schlafzimmern, Handtuchheizkörper im Bad
Fußbodenheizung im Badezimmer optional möglich
Highlight: Eigener Gartenanteil von ca. 120 m²
Ein direkter Zugang zur privaten Gartenfläche bietet zusätzlichen Wohnkomfort – ideal zum Entspannen, für Familien mit Kindern oder für Hobbygärtner.
Tiefgaragenstellplatz obligatorisch
Zu jeder Wohnung gehört mindestens ein Stellplatz in der Tiefgarage des Gebäudes (mit Aufzug bis zum Untergeschoss).
- Preis pro Stellplatz: €9.400 (PLN 40.000)
- Breite: ca. 3 m | Länge: ca. 5,5 m
- Bequeme Ein- und Ausfahrt durch großzügige Maße
Weitere Merkmale:
- Heizung und Warmwasser zentral über städtische Versorgungswerke (SEC)
- Eigentumsübertragung: geplanter Termin im 1. bis 2. Quartal 2025
- Schlüsselübergabe zur Innenausstattung bereits möglich – Bauarbeiten abgeschlossen
Die Wohnanlage:
- Zeitgemäße Architektur mit klaren Linien
- Vollständig erschlossenes Grundstück
- Fußwege, Grünflächen und Spielplatz vorhanden
- Ruhige Umgebung mit niedriger Bebauung
Lage:
Das Objekt befindet sich in einer gefragten und gut angebundenen Lage von Stettin. Einkaufsmöglichkeiten, Schule, Kindergarten, Krippe sowie eine medizinische Einrichtung befinden sich in unmittelbarer Nähe.
Diese Immobilie vereint modernes Wohnen mit Familienfreundlichkeit und großzügigem Außenbereich. Ein perfekter Ort zum Leben – ruhig gelegen und dennoch zentrumsnah.
Vereinbaren Sie gerne einen Besichtigungstermin – wir freuen uns auf Ihren Besuch!
Details
Immobilienart: Wohnung
Gesamtfläche: 103,58 m²
Grundstückseigentum: Eigentum
Gebäudetyp: Wohnblock
Baujahr: 2024
Standard: Bauträgerzustand
Gebäudestatus: Neuwertig
Wandmaterial: Ziegel
Küchentyp: Offene Küche (Kochnische)
Küchenfläche: 5 m²
Anzahl der Badezimmer: 1
Badezimmerfläche: 6,61 m²
Zufahrt: Ruhige Straße
Zimmerflächen: 30 m² + 12 m² + 11 m² + 10 m² + 10 m²
Erdgeschosswohnung: Ja
Anzahl der Stockwerke (inkl. EG): 3
Raumhöhe: 2,65 m
Warmwasserquelle: Städtisches Netz
Heizung: Fernwärme (städtisches Netz)
Telefonanschluss: Ja
Aufzug im Gebäude: Ja
Starkstrom (400V): Ja
Internetzugang: Ja
Kabelfernsehen: Ja
Gegensprechanlage: Ja
Fenstertyp: Kunststofffenster
Bodenbelag: Betonrohboden
Umzäunung: Komplett eingezäunt
Garage: Ja
Anzahl der Stellplätze: 40.000
Garten: Ja
Barrierefrei: Ja
Anzahl der Balkone: 1
Balkonfläche: 5 m²
Terrasse: Ja
Anzahl der Terrassen: 1
Terrassenfläche: 12 m²
Ausrichtung: Westblick
In der Nähe befinden sich:
- Geschäft
- Kindertagesstätte
- Kindergarten
- Grundschule
- Bushaltestelle (Fernverkehr)
- Öffentliche Verkehrsmittel
- Apotheke
- Gastronomiebetrieb
- Fitnessstudio
- Spielplatz
Badezimmerausstattung: Handtuchheizkörper
Hinweis
- Das erste Foto in unserer Galerie wurde leicht bearbeitet, um zu veranschaulichen, wie die Wohnung aussehen könnte – beispielsweise durch eine geänderte Wandfarbe. Die nachfolgenden Bilder zeigen den tatsächlichen Zustand der Immobilie.
- Der in Euro angegebene Preis entspricht dem Preis in Złoty, stellt jedoch aufgrund von Wechselkursschwankungen stets einen Näherungswert dar. In unseren Anzeigen ist stets auch der vom Verkäufer gewünschte Preis in Złoty angegeben.
Hinweise zur polnischen Immobilienpraxis:
- Begrenzte Objektinformationen: In Polen ist es üblich, dass Immobilienanzeigen nicht den genauen Standort der Immobilie preisgeben.
- Grundrisse: Detaillierte Grundrisse werden in Exposés nicht immer bereitgestellt.
Als Immobilienbüro bieten wir deutschsprachigen Kunden eine umfassende Betreuung an. Wir vertreten Sie als Käufer.
Wir arbeiten mit geprüften Partnern zusammen (Immobilienbewertung, Steuerliche und rechtliche Beratung, Vereidigte Übersetzungen, Renovierung sanierungsbedürftiger Objekte).
Bei Kapitalanlagen übernehmen wir auch die Verwaltung der Immobilie.
Persönliche Begleitung – transparent, kompetent und auf Deutsch.
Eigenschaften der Immobilie
- Erdgeschoss
- Aufzug
- Zaun
- Garage
- Garten
- Barrierefrei
- Terrasse
- Balkon
Diese Immobilien könnten Sie ebenfalls interessieren
Über uns
Willkommen bei Ihrem Immobilienpartner in Stettin und Westpommern!
Wir sind ein engagiertes Immobilienbüro mit langjähriger Erfahrung auf dem lokalen Markt. In unserem Angebot finden Sie eine große Auswahl an Immobilien in Stettin sowie attraktive Objekte an der polnischen Ostseeküste – ob zum Wohnen, als Kapitalanlage oder zur Feriennutzung.
Wir sprechen Deutsch und begleiten Sie gerne professionell durch den gesamten Kauf- oder Verkaufsprozess. Ob Wohnung, Haus, Grundstück oder Ferienimmobilie – wir finden garantiert die passende Adresse für Sie!
Besuchen Sie uns auf eine Tasse Kaffee in unserem Büro oder nehmen Sie einfach Kontakt mit uns auf. Wir freuen uns auf Sie!
Zusammenarbeit mit uns
Wir sind ein Immobilienbüro, das mit Maklerbüros in der Woiwodschaft Westpommern in Polen zusammenarbeitet. Dabei vertreten wir stets nur eine Seite der Transaktion – nämlich den Kunden aus Deutschland und den DACH-Ländern. In seinem Namen verhandeln wir den Preis, prüfen das Angebot und übernehmen sämtliche Formalitäten.
Auch nach dem Kauf stehen wir unseren Kunden beratend zur Seite und bleiben mit ihnen in Kontakt. Auf Wunsch unterstützen wir auch bei der Renovierung oder umfassenden Sanierung der Immobilie. Darüber hinaus bieten wir die Verwaltung von vermieteten Immobilien an – im Raum Stettin und der näheren Umgebung.
Wir legen großen Wert auf klare Regeln und ein faires Miteinander. Unsere Provision entspricht den in Polen üblichen Sätzen: 3.69% des Kaufpreises bei Wohnungen und Häusern sowie 6,15% bei Grundstücken. Die Provision wird beim Notar im Rahmen der Vertragsunterzeichnung fällig und bezahlt.
Wir arbeiten mit einer renommierten deutschsprachigen Notarkanzlei in Stettin zusammen.
Steuerliche Vorteile
Beim Erwerb von Bestandsimmobilien fällt lediglich eine geringe Grunderwerbsteuer an, die bei Immobilien auf dem Zweitmarkt 2% und bei Immobilien auf dem Erstmarkt 0% beträgt. Darüber hinaus richtet sich die Grundsteuer in Polen nach der Fläche und ist äußerst niedrig.