Stettin Gumieńce: Modernes Endreihenhaus mit Garten und Garage in ruhiger Lage
401,000 €
Beschreibung
Neubau in Gumieńce – Endreihenhaus in attraktiver Lage
Entdecken Sie eine moderne Wohnanlage in einem ruhigen und begehrten Teil von Gumieńce, umgeben von Einfamilienhäusern niedriger Bebauung. Zum Verkauf steht ein großzügiges Endreihenhaus mit viel Platz für die ganze Familie.
Eckdaten der Immobilie:
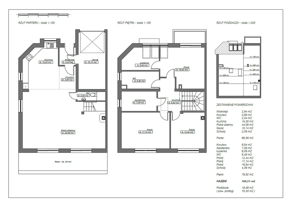
- Wohnfläche: 166,51 m²
- Zusätzlich ausgebautes Dachgeschoss: 18,58 m² Nutzfläche (75,33 m² Bodenfläche)
- Grundstücksfläche: 402 m²
Das Haus wurde in massiver Ziegelbauweise (Porotherm) errichtet, mit 15 cm Wärmedämmung isoliert und verfügt über doppelte Trennwände zu den Nachbarhäusern. Das Satteldach ist mit Betondachziegeln gedeckt. Große Aluminiumfenster sorgen für viel Licht, besonders im Wohnzimmer, das mit elektrischen Außenjalousien und einer Schiebetür zum Garten ausgestattet ist.
Raumaufteilung:
Erdgeschoss – 86,59 m²:
Raumhöhe: 2,90 m
- Windfang
- Flur
- Gäste-WC
- Küche
- Geräumiges Wohnzimmer mit Zugang zum Garten
- Integrierte Garage (15,74 m²)
Obergeschoss – 79,92 m²:
Raumhöhe: 2,70 m
- Flur
- Ankleidezimmer
- Badezimmer
- Zusätzliches WC
- Drei Schlafzimmer
Dachgeschoss:
- Nutzfläche: 18,58 m²
- Bodenfläche: 75,33 m²
Ideal als Hobbyraum, Spielbereich oder zusätzlicher Stauraum.
Ausstattung & Technik:
- Fußbodenheizung in allen Geschossen
- Zweifunktionaler Heizkessel mit Warmwasserspeicher
- Alarmsystem mit Zentraleinheit und Sensoren
- Videoüberwachung
- TV- und Internetanschlüsse
- Vorbereitung für zentrales Staubsaugersystem
Außenbereich:
- Vollständig eingefriedetes Grundstück
- Angelegter Garten
- Private Auffahrt mit Stellplatz vor der Garage
Detaillierte Grundrisse mit Raummaßen stehen zur Verfügung und ermöglichen eine präzise Planung Ihrer neuen Wohnwelt.
Dieses Haus bietet modernen Komfort, hochwertige Ausstattung und eine ruhige Lage mit guter Anbindung – perfekt geeignet für Familien, die städtische Nähe und ein grünes Umfeld schätzen.
Kontaktieren Sie uns für weitere Informationen oder um einen Besichtigungstermin zu vereinbaren – wir freuen uns, Ihnen dieses besondere Zuhause persönlich zeigen zu dürfen.
Details
Immobilienart: Einfamilienhaus (Reihenendhaus)
Ortsteil: Gumieńce
Baujahr: 2023
Wohnfläche: 166,51 m²
Grundstücksfläche: 402,00 m²
Nutzfläche: 166,51 m²
Zustand: Neubau (im Entwicklerstandard)
Bauweise: Ziegel (Keramikziegel)
Dachdeckung: Betondachziegel
Etagenanzahl (inkl. EG): 1
Kaufpreis: ~1.600.000 PLN~
Ausstattung & Besonderheiten
- Reihenendhaus in ruhiger Wohnlage von Gumieńce
- Moderne Architektur und großzügige Raumaufteilung
- Helle, offene Küche mit einer Fläche von 15,3 m²
- 1 Badezimmer + 2 separate WCs
- Geräumige Garderobe
- Balkon und sonniger Terrassenbereich
- Privater Garten – ideal für Familien und Hobbygärtner
- Garage im Haus integriert
Technische Merkmale
- Anschlüsse für Strom und Gas vorhanden
- Bau im Entwicklungsstandard – Möglichkeit zur individuellen Gestaltung
- Hochwertige Bauweise mit Ziegelmauerwerk
- Betondachziegel – langlebig und witterungsbeständig
Lagebeschreibung
Gumieńce ist ein beliebter Stadtteil mit guter Infrastruktur und angenehmer Nachbarschaft. Die Immobilie liegt in einer ruhigen Wohnstraße mit schneller Anbindung an das Stadtzentrum von Stettin. In unmittelbarer Nähe befinden sich Schulen, Einkaufsmöglichkeiten, Grünanlagen und Verkehrsanbindungen (ÖPNV).
Diese Immobilie bietet eine ideale Kombination aus moderner Ausstattung, großzügigem Raumangebot und ruhiger Lage - perfekt für Familien, Paare oder als Investition.
Zögern Sie nicht, uns für weitere Informationen oder zur Vereinbarung eines Besichtigungstermins zu kontaktieren!
Hinweis
- Das erste Foto in unserer Galerie wurde leicht bearbeitet, um zu veranschaulichen, wie die Wohnung aussehen könnte – beispielsweise durch eine geänderte Wandfarbe. Die nachfolgenden Bilder zeigen den tatsächlichen Zustand der Immobilie.
- Der in Euro angegebene Preis entspricht dem Preis in Złoty, stellt jedoch aufgrund von Wechselkursschwankungen stets einen Näherungswert dar. In unseren Anzeigen ist stets auch der vom Verkäufer gewünschte Preis in Złoty angegeben.
Hinweise zur polnischen Immobilienpraxis:
- Begrenzte Objektinformationen: In Polen ist es üblich, dass Immobilienanzeigen nicht den genauen Standort der Immobilie preisgeben.
- Grundrisse: Detaillierte Grundrisse werden in Exposés nicht immer bereitgestellt.
Als Immobilienbüro bieten wir deutschsprachigen Kunden eine umfassende Betreuung an. Wir vertreten Sie als Käufer.
Wir arbeiten mit geprüften Partnern zusammen (Immobilienbewertung, Steuerliche und rechtliche Beratung, Vereidigte Übersetzungen, Renovierung sanierungsbedürftiger Objekte).
Bei Kapitalanlagen übernehmen wir auch die Verwaltung der Immobilie.
Persönliche Begleitung – transparent, kompetent und auf Deutsch.
Eigenschaften der Immobilie
- Gas
- Garage
- Garten
- Garderobe
- Terrasse
Diese Immobilien könnten Sie ebenfalls interessieren
Über uns
Willkommen bei Ihrem Immobilienpartner in Stettin und Westpommern!
Wir sind ein engagiertes Immobilienbüro mit langjähriger Erfahrung auf dem lokalen Markt. In unserem Angebot finden Sie eine große Auswahl an Immobilien in Stettin sowie attraktive Objekte an der polnischen Ostseeküste – ob zum Wohnen, als Kapitalanlage oder zur Feriennutzung.
Wir sprechen Deutsch und begleiten Sie gerne professionell durch den gesamten Kauf- oder Verkaufsprozess. Ob Wohnung, Haus, Grundstück oder Ferienimmobilie – wir finden garantiert die passende Adresse für Sie!
Besuchen Sie uns auf eine Tasse Kaffee in unserem Büro oder nehmen Sie einfach Kontakt mit uns auf. Wir freuen uns auf Sie!
Zusammenarbeit mit uns
Wir sind ein Immobilienbüro, das mit Maklerbüros in der Woiwodschaft Westpommern in Polen zusammenarbeitet. Dabei vertreten wir stets nur eine Seite der Transaktion – nämlich den Kunden aus Deutschland und den DACH-Ländern. In seinem Namen verhandeln wir den Preis, prüfen das Angebot und übernehmen sämtliche Formalitäten.
Auch nach dem Kauf stehen wir unseren Kunden beratend zur Seite und bleiben mit ihnen in Kontakt. Auf Wunsch unterstützen wir auch bei der Renovierung oder umfassenden Sanierung der Immobilie. Darüber hinaus bieten wir die Verwaltung von vermieteten Immobilien an – im Raum Stettin und der näheren Umgebung.
Wir legen großen Wert auf klare Regeln und ein faires Miteinander. Unsere Provision entspricht den in Polen üblichen Sätzen: 3.69% des Kaufpreises bei Wohnungen und Häusern sowie 6,15% bei Grundstücken. Die Provision wird beim Notar im Rahmen der Vertragsunterzeichnung fällig und bezahlt.
Wir arbeiten mit einer renommierten deutschsprachigen Notarkanzlei in Stettin zusammen.
Steuerliche Vorteile
Beim Erwerb von Bestandsimmobilien fällt lediglich eine geringe Grunderwerbsteuer an, die bei Immobilien auf dem Zweitmarkt 2% und bei Immobilien auf dem Erstmarkt 0% beträgt. Darüber hinaus richtet sich die Grundsteuer in Polen nach der Fläche und ist äußerst niedrig.