Modernes Reihenhaus in Stettin-Gumieńce mit Garten, Garage und Dachstudio
307,000 €
Beschreibung
Neues Reihenhaus auf den Gumieńce – attraktives Zuhause in ruhiger Lage
Willkommen in Ihrem neuen Zuhause im beliebten Stadtteil Gumieńce! Diese moderne Reihenhaus-Investition befindet sich in einem ruhigen Wohngebiet, umgeben von niedriger Einfamilienhausbebauung – ideal für Familien oder Paare, die eine komfortable und gut angebundene Umgebung suchen.
Objektdetails
- Haustyp: Reihenmittelhaus
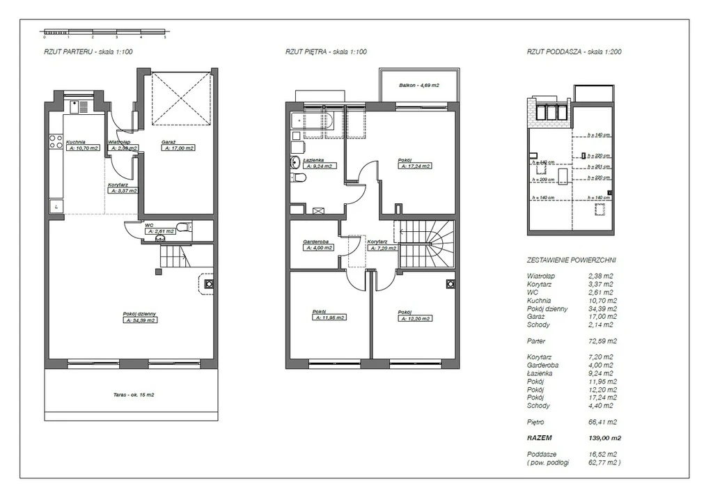
- Wohnfläche: ca. 139 m² + ausgebautes Dachgeschoss
- Grundstück: ca. 178 m²
Erdgeschoss – ca. 72,59 m²
- Großzügiger Wohnbereich mit Zugang zum Garten
- Separate Küche
- Gäste-WC
- Eingangsbereich mit Windfang und Flur
- Integrierte Garage (ca. 17 m²)
- Deckenhöhe: 2,90 m
Obergeschoss – ca. 66,41 m²
- Drei gemütliche Schlafzimmer
- Praktischer Flur
- Badezimmer
- Geräumige Ankleide
- Deckenhöhe: 2,70 m
Dachgeschoss
- Nutzfläche ca. 16,52 m² (Gesamtbodenfläche: 62,77 m²)
- Vielseitig nutzbar – z. B. als Arbeitszimmer, Spielraum oder Hobbybereich
Hinweis: Detaillierte Raumaufteilung entnehmen Sie bitte dem beigefügten Grundriss.
Ausstattung und Bauweise
- Solide Bauweise: Porotherm-Keramikziegel mit 15 cm Wärmedämmung
- Doppelte Trennwände zu den Nachbarhäusern für mehr Privatsphäre und Schallschutz
- Satteldach mit Zementziegeln
- 3-fach verglaste Kunststofffenster
- Elektrisch gesteuerte Außenrollläden
- Schiebetür im Wohnzimmer mit Zugang zur Terrasse
Technische Ausstattung
- Moderne Alarmanlage mit Zentraleinheit und Sensoren
- Vorbereitungen für Videoüberwachung
- TV- und Internetverkabelung
- Zentrale Staubsaugeranlage
- Fußbodenheizung im gesamten Haus
- Effiziente Gastherme für Heizung und Warmwasser
Außenbereich
- Geschmackvoll gestalteter und umzäunter Garten
- Zufahrt mit Stellplatz direkt vor der Garage
Diese Immobilie vereint durchdachte Architektur, hochwertige Ausstattung und eine familienfreundliche Lage. Genießen Sie Ihren privaten Garten, moderne Technologien und großzügige Raumaufteilung auf mehreren Ebenen.
Kontaktieren Sie uns gerne für weitere Informationen oder zur Vereinbarung eines Besichtigungstermins. Wir freuen uns auf Sie!
Details
Immobilienangebot – Reihenmittelhaus in Gumieńce, Stettin
Objekttyp: Haus
Haustyp: Reihenmittelhaus
Ort: Gumieńce, Stettin
Baujahr: 2023
Zustand: Im Ausbauzustand (Developerstandard)
Bauweise: Ziegel (Keramikziegel)
Gesamtfläche: 139,00 m²
Nutzfläche: 139,00 m²
Grundstücksfläche: 178,00 m²
Preis: ~1.099.000 PLN~
Ausstattungsmerkmale:
- Garage: ✔️
- Eigener Garten: ✔️
- Terrasse: ✔️ (15 m²)
- Balkon: ✔️ (1 Stück)
- Ankleidezimmer: ✔️
- Küche: Offene Küche (10,70 m²)
- Badezimmer: 1
- WC separat: 1
- Dachbedeckung: Betondachziegel
- Energieversorgung: Stromanschluss vorhanden
- Gasversorgung: Anschluss vorhanden
Beschreibung:
Zum Verkauf steht ein modernes Reihenmittelhaus im attraktiven Stadtteil Gumieńce in Stettin. Das im Jahr 2023 errichtete Haus befindet sich im sogenannten Developerstandard – ideal für Käufer, die ihre Innenraumgestaltung individuell umsetzen möchten.
Die Gesamtwohnfläche von 139 m² verteilt sich auf zwei Ebenen und bietet ausreichend Platz für eine Familie. Der offene Küchenbereich mit einer Fläche von 10,70 m² lässt sich harmonisch ins Wohnkonzept integrieren. Zusätzlich verfügt das Haus über ein separates WC sowie ein großzügiges Badezimmer.
Ein besonderes Highlight dieser Immobilie ist die sonnige Terrasse (15 m²), die direkt an den eigenen Garten angrenzt – ein perfekter Ort zum Entspannen. Zudem gibt es einen Balkon, ein praktisches Ankleidezimmer sowie eine Garage, die komfortables Parken ermöglicht.
Das Haus wurde mit hochwertigen Materialien erbaut, u. a. mit keramischen Ziegeln und einer robusten Betondachziegeleindeckung. Alle Anschlüsse – Strom und Gas – sind vorhanden, was den zukünftigen Ausbau und Bezug deutlich erleichtert.
Highlights auf einen Blick:
- Neubau (2023) im Developerstandard
- Funktionaler Grundriss mit großzügiger Wohnfläche
- Eigene Grünfläche und Terrasse
- Garage & Balkon vorhanden
- Ruhige Lage im Stadtteil Gumieńce
Ein Haus mit großem Potenzial für Ihr neues Zuhause – gestalten Sie es nach Ihren eigenen Vorstellungen.
Kontaktieren Sie uns gerne für weitere Informationen oder zur Vereinbarung eines Besichtigungstermins.
Hinweis
- Das erste Foto in unserer Galerie wurde leicht bearbeitet, um zu veranschaulichen, wie die Wohnung aussehen könnte – beispielsweise durch eine geänderte Wandfarbe. Die nachfolgenden Bilder zeigen den tatsächlichen Zustand der Immobilie.
- Der in Euro angegebene Preis entspricht dem Preis in Złoty, stellt jedoch aufgrund von Wechselkursschwankungen stets einen Näherungswert dar. In unseren Anzeigen ist stets auch der vom Verkäufer gewünschte Preis in Złoty angegeben.
Hinweise zur polnischen Immobilienpraxis:
- Begrenzte Objektinformationen: In Polen ist es üblich, dass Immobilienanzeigen nicht den genauen Standort der Immobilie preisgeben.
- Grundrisse: Detaillierte Grundrisse werden in Exposés nicht immer bereitgestellt.
Als Immobilienbüro bieten wir deutschsprachigen Kunden eine umfassende Betreuung an. Wir vertreten Sie als Käufer.
Wir arbeiten mit geprüften Partnern zusammen (Immobilienbewertung, Steuerliche und rechtliche Beratung, Vereidigte Übersetzungen, Renovierung sanierungsbedürftiger Objekte).
Bei Kapitalanlagen übernehmen wir auch die Verwaltung der Immobilie.
Persönliche Begleitung – transparent, kompetent und auf Deutsch.
Eigenschaften der Immobilie
- Gas
- Garage
- Garten
- Garderobe
- Terrasse
Diese Immobilien könnten Sie ebenfalls interessieren
Über uns
Willkommen bei Ihrem Immobilienpartner in Stettin und Westpommern!
Wir sind ein engagiertes Immobilienbüro mit langjähriger Erfahrung auf dem lokalen Markt. In unserem Angebot finden Sie eine große Auswahl an Immobilien in Stettin sowie attraktive Objekte an der polnischen Ostseeküste – ob zum Wohnen, als Kapitalanlage oder zur Feriennutzung.
Wir sprechen Deutsch und begleiten Sie gerne professionell durch den gesamten Kauf- oder Verkaufsprozess. Ob Wohnung, Haus, Grundstück oder Ferienimmobilie – wir finden garantiert die passende Adresse für Sie!
Besuchen Sie uns auf eine Tasse Kaffee in unserem Büro oder nehmen Sie einfach Kontakt mit uns auf. Wir freuen uns auf Sie!
Zusammenarbeit mit uns
Wir sind ein Immobilienbüro, das mit Maklerbüros in der Woiwodschaft Westpommern in Polen zusammenarbeitet. Dabei vertreten wir stets nur eine Seite der Transaktion – nämlich den Kunden aus Deutschland und den DACH-Ländern. In seinem Namen verhandeln wir den Preis, prüfen das Angebot und übernehmen sämtliche Formalitäten.
Auch nach dem Kauf stehen wir unseren Kunden beratend zur Seite und bleiben mit ihnen in Kontakt. Auf Wunsch unterstützen wir auch bei der Renovierung oder umfassenden Sanierung der Immobilie. Darüber hinaus bieten wir die Verwaltung von vermieteten Immobilien an – im Raum Stettin und der näheren Umgebung.
Wir legen großen Wert auf klare Regeln und ein faires Miteinander. Unsere Provision entspricht den in Polen üblichen Sätzen: 3.69% des Kaufpreises bei Wohnungen und Häusern sowie 6,15% bei Grundstücken. Die Provision wird beim Notar im Rahmen der Vertragsunterzeichnung fällig und bezahlt.
Wir arbeiten mit einer renommierten deutschsprachigen Notarkanzlei in Stettin zusammen.
Steuerliche Vorteile
Beim Erwerb von Bestandsimmobilien fällt lediglich eine geringe Grunderwerbsteuer an, die bei Immobilien auf dem Zweitmarkt 2% und bei Immobilien auf dem Erstmarkt 0% beträgt. Darüber hinaus richtet sich die Grundsteuer in Polen nach der Fläche und ist äußerst niedrig.