Investieren in Greifenhagen: Renovierte Stadtvilla mit vielseitigem Nutzungspotenzial
604,000 €
Beschreibung
Historische Stadtvilla mit großem Potenzial – vielseitige Investitionsmöglichkeiten in der Nähe von Gryfino
Nur rund 20 Autominuten von Gryfino entfernt steht diese beeindruckende Stadtvilla mit zahlreichen Entwicklungs- und Nutzungsmöglichkeiten zum Verkauf. Das Gebäude bietet besonders für Investoren mit Fokus auf Wohnraumnutzung eine äußerst attraktive Gelegenheit. Auch eine getrennte Veräußerung einzelner Etagen ist möglich.
Immobilienprofil:
- Grundstücksfläche: 374 m²
- Gesamtnutzfläche: ca. 522 m²
- Wohnfläche: ca. 492 m²
- Baujahr: ca. 1920
- Bauweise: massive Ziegelbauweise
- Etagen: 2 + Untergeschoss
- Zustand: sehr gepflegt, umfassend renoviert
- Dach: erneuert 2011, mit Dachpappe gedeckt
- Heizung: Fernwärme (Zentralheizung)
- Warmwasser: elektrischer Boiler
- Kellerfläche: ca. 115 m²
- Fenster: moderne Kunststofffenster
- Garagen und Stellplätze vorhanden
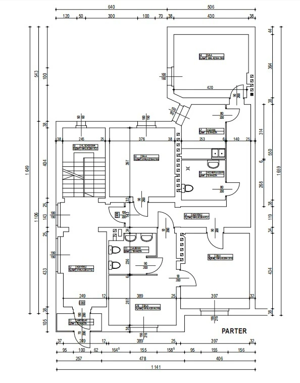
Die Stadtvilla wurde zuletzt als soziale Einrichtung genutzt – das Erdgeschoss sowie das erste Obergeschoss wurden vollständig renoviert und modern ausgestattet. Aktuell wird die Rückführung zum ursprünglichen Wohnzweck vorbereitet, welche fristgerecht abgeschlossen wird.
Nutzungspotenzial:
- Möglichkeit zur Umgestaltung in bis zu 17–20 Mikrowohnungen oder 8 komfortable 2-Zimmer-Wohnungen
- Alle Räume verfügen über Wasser- und Abwasseranschlüsse, ideal für Sanitär- und Kücheninstallationen
- Alternativ viel Potenzial für Büro- und Kanzleinutzung, Gesundheitsdienstleistungen, Privatpraxen, eine Hotelnutzung oder für Vermietung als Wohneinheiten
- Genehmigte Nutzung auch laut aktuellem Bebauungsplan möglich
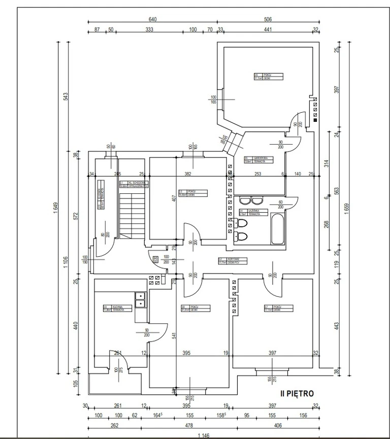
Wohnung im 2. Obergeschoss (ca. 114 m²):
- Wohnzimmer: ca. 21 m² mit Zugang zur Küche
- Küche: ca. 11,3 m² mit Balkonzugang
- Schlafzimmer 1 und 2: je ca. 17,1 m²
- Schlafzimmer 3: ca. 15,6 m²
- Badezimmer: ca. 6,2 m² mit WC, Bidet, Doppelwaschbecken und Badewanne
- Ankleidezimmer: ca. 7,6 m² mit Fenster, auch als zusätzliches Zimmer nutzbar
- Großer Flur: ca. 17,8 m²
Die Ausstattung ist hochwertig: Echtholzboden in den Zimmern, Terrakottafliesen in Küche, Bad, Flur und Ankleide. Ein Großteil der hochwertigen Einrichtung bleibt erhalten.
Besondere Merkmale & Ausstattung:
- Drei separate Hauseingänge, darunter ein Haupteingang zur Straße
- Modernisierte Elektro- und Sanitärinstallationen (Kupferleitungen, Wasserleitungen erneuert 2017)
- Alarmanlage, Videoüberwachung, Gegensprechanlage
- Internet, Festnetzanschluss, 400V Drehstrom
- Stadtwasser, Strom, Kanalisation und Gasanschluss vorhanden
- Zwei Balkone, Garage vorhanden
Lage:
Die Immobilie liegt zentral mit optimaler Anbindung an öffentliche Verkehrsmittel. In unmittelbarer Nähe befinden sich:
- Kindergarten und Schule
- Bahnhof und Bushaltestelle
- Geschäfte des täglichen Bedarfs
- Städtischer Park und Spielplatz
- Gesundheitszentrum und gastronomische Angebote
Fazit:
Diese stilvolle und gepflegte Stadtvilla eignet sich hervorragend für private Investoren, Bauträger oder Unternehmen, die auf der Suche nach einem vielseitig nutzbaren Objekt mit Entwicklungspotenzial sind. Der gepflegte Zustand, die hervorragende Lage und die flexible Nutzbarkeit machen diese Immobilie zu einer äußerst interessanten Investitionsmöglichkeit.
Details
Objektart: Stadthaus
Gesamtfläche: 522,00 m²
Grundstücksfläche: 374,00 m²
Grundstücksform: Rechteckig
Nutzfläche: 492,00 m²
Eigentumsform des Grundstücks: Eigentum
Baujahr: 1920
Gebäudestandard: Sehr gut
Gebäudezustand: Sehr gut
Bauweise: Ziegel
Grundstückslage: Flaches Gelände
Anzahl der Etagen (inkl. Erdgeschoss): 2
Typ der Küche: Mit Fenster
Anzahl der Badezimmer: 5
Badezimmerausstattung: WC, Waschbecken
Fenstertyp: Kunststofffenster
Fußbodenbeläge: Terrakotta, Teppichboden, Paneele
Dachdeckung: Bitumendachpappe
Keller: Ja
Kellerfläche: 115 m²
Garage: Ja
Anzahl der Balkone: 2
Heißwasserquelle: Elektrischer Boiler
Heizung: Fernwärme aus dem lokalen Netz
Abwasser: Städtisch
Wasserquelle: Städtisches Wasser
Anschlüsse:
- Telefonleitung: Ja
- Strom: Ja
- Starkstrom 400V: Ja
- Gasanschluss: Ja
- Internet: Ja
Sicherheitsmerkmale:
- Alarmanlage: Ja
- Videoüberwachung: Ja
- Gegensprechanlage: Ja
In der Nähe:
- Park
- Geschäft
- Kindergarten
- Grundschule
- Bahnhof
- Öffentliche Verkehrsmittel
- Gastronomiebetrieb
- Krankenhaus
- Spielplatz
Hinweis
- Das erste Foto in unserer Galerie wurde leicht bearbeitet, um zu veranschaulichen, wie die Wohnung aussehen könnte – beispielsweise durch eine geänderte Wandfarbe. Die nachfolgenden Bilder zeigen den tatsächlichen Zustand der Immobilie.
- Der in Euro angegebene Preis entspricht dem Preis in Złoty, stellt jedoch aufgrund von Wechselkursschwankungen stets einen Näherungswert dar. In unseren Anzeigen ist stets auch der vom Verkäufer gewünschte Preis in Złoty angegeben.
Hinweise zur polnischen Immobilienpraxis:
- Begrenzte Objektinformationen: In Polen ist es üblich, dass Immobilienanzeigen nicht den genauen Standort der Immobilie preisgeben.
- Grundrisse: Detaillierte Grundrisse werden in Exposés nicht immer bereitgestellt.
Als Immobilienbüro bieten wir deutschsprachigen Kunden eine umfassende Betreuung an. Wir vertreten Sie als Käufer.
Wir arbeiten mit geprüften Partnern zusammen (Immobilienbewertung, Steuerliche und rechtliche Beratung, Vereidigte Übersetzungen, Renovierung sanierungsbedürftiger Objekte).
Bei Kapitalanlagen übernehmen wir auch die Verwaltung der Immobilie.
Persönliche Begleitung – transparent, kompetent und auf Deutsch.
Eigenschaften der Immobilie
- nahe der Grenze
- Keller
- Gas
- Garage
- Balkon
Diese Immobilien könnten Sie ebenfalls interessieren
Über uns
Willkommen bei Ihrem Immobilienpartner in Stettin und Westpommern!
Wir sind ein engagiertes Immobilienbüro mit langjähriger Erfahrung auf dem lokalen Markt. In unserem Angebot finden Sie eine große Auswahl an Immobilien in Stettin sowie attraktive Objekte an der polnischen Ostseeküste – ob zum Wohnen, als Kapitalanlage oder zur Feriennutzung.
Wir sprechen Deutsch und begleiten Sie gerne professionell durch den gesamten Kauf- oder Verkaufsprozess. Ob Wohnung, Haus, Grundstück oder Ferienimmobilie – wir finden garantiert die passende Adresse für Sie!
Besuchen Sie uns auf eine Tasse Kaffee in unserem Büro oder nehmen Sie einfach Kontakt mit uns auf. Wir freuen uns auf Sie!
Zusammenarbeit mit uns
Wir sind ein Immobilienbüro, das mit Maklerbüros in der Woiwodschaft Westpommern in Polen zusammenarbeitet. Dabei vertreten wir stets nur eine Seite der Transaktion – nämlich den Kunden aus Deutschland und den DACH-Ländern. In seinem Namen verhandeln wir den Preis, prüfen das Angebot und übernehmen sämtliche Formalitäten.
Auch nach dem Kauf stehen wir unseren Kunden beratend zur Seite und bleiben mit ihnen in Kontakt. Auf Wunsch unterstützen wir auch bei der Renovierung oder umfassenden Sanierung der Immobilie. Darüber hinaus bieten wir die Verwaltung von vermieteten Immobilien an – im Raum Stettin und der näheren Umgebung.
Wir legen großen Wert auf klare Regeln und ein faires Miteinander. Unsere Provision entspricht den in Polen üblichen Sätzen: 3.69% des Kaufpreises bei Wohnungen und Häusern sowie 6,15% bei Grundstücken. Die Provision wird beim Notar im Rahmen der Vertragsunterzeichnung fällig und bezahlt.
Wir arbeiten mit einer renommierten deutschsprachigen Notarkanzlei in Stettin zusammen.
Steuerliche Vorteile
Beim Erwerb von Bestandsimmobilien fällt lediglich eine geringe Grunderwerbsteuer an, die bei Immobilien auf dem Zweitmarkt 2% und bei Immobilien auf dem Erstmarkt 0% beträgt. Darüber hinaus richtet sich die Grundsteuer in Polen nach der Fläche und ist äußerst niedrig.