Moderne 4-Zimmer-Wohnung mit Balkon und Garage in ruhiger Wohnlage in Pretzen
165,000 €
Beschreibung
Moderne, großzügige 4-Zimmer-Wohnung mit Balkon und Garage in gepflegtem Mehrfamilienhaus
Willkommen in Ihrem neuen Zuhause! Diese stilvolle und sehr gepflegte 4-Zimmer-Wohnung mit einer Gesamtfläche von 83,10 m² befindet sich im 2. Obergeschoss eines vierstöckigen Gebäudes aus dem Jahr 1998. Das Haus wurde solide in Ziegelbauweise errichtet und ist mit Styropor gedämmt – ideal für energiesparendes Wohnen.
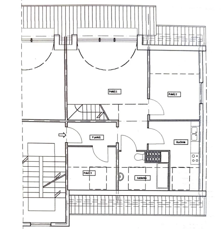
Raumaufteilung und Ausstattung:
Die Wohnung besticht durch eine kluge Raumaufteilung und helle, freundliche Zimmer mit einer großzügigen Deckenhöhe von 2,50 m.
- Wohnfläche gesamt: 83,10 m²
- Wohnzimmer: ca. 30 m² – ideal für gemütliche Abende oder gesellige Runden
- 3 Schlafzimmer: ca. 18 m², 12 m² und 9 m² – flexibel nutzbar als Schlaf-, Arbeits- oder Kinderzimmer
- Küche: 6 m² – mit Fenster, gut ausgestattet mit elektrischer Herdplatte, Backofen, Mikrowelle und Geschirrspüler
- Badezimmer: mit Badewanne
- Separates WC
- Flur mit ausreichend Stauraum
Die Wohnung verfügt über moderne Fenster (teils Holz, teils Kunststoff), eine Gegensprechanlage sowie gepflegte Bodenbeläge mit Laminat.
Beheizung und Energie:
Die Wohnung wird über eine moderne, zweikreisige Gastherme beheizt und mit Warmwasser versorgt.
Ein privater Balkon lädt zum Entspannen ein – hier können Sie Ihre Kaffepause an der frischen Luft genießen.
Zusätzliche Vorteile:
Zur Wohnung gehört ein praktischer Garagenstellplatz, der Ihnen das lästige Parkplatzsuchen erspart.
Top-Lage in einem ruhigen Wohngebiet:
Die Wohnung befindet sich in einem sauberen und ruhigen Wohnviertel mit viel Grünflächen rundum. Alle Einrichtungen des täglichen Bedarfs sind fußläufig erreichbar:
- Supermärkte: Biedronka, Żabka, Lidl
- Gesundheitsversorgung: Apotheke, Arztpraxis
- Gastronomie: Pizzeria und weitere Restaurants
- Bildungseinrichtungen: Krippe, Kindergarten und Schule in unmittelbarer Nähe
- Freizeit: Spielplatz in der Nähe
- Öffentliche Verkehrsmittel: Sehr gute Anbindung – Haltestellen nur wenige Minuten entfernt
In nur 3 Gehminuten erreichen Sie alle zentralen Punkte des Viertels – perfekt für kinderfreundliches und komfortables Wohnen.
Einziehen und wohlfühlen:
Die Wohnung befindet sich in einem sehr guten Zustand – hier können Sie sofort einziehen. Sie eignet sich perfekt für Familien, Paare oder alle, die großzügiges und helles Wohnen in ruhiger Lage suchen.
Monatliches Hausgeld:
€240 (PLN 1.020)
Vereinbaren Sie noch heute Ihre persönliche Besichtigung – wir freuen uns auf Sie!
Details
Geräumige 4-Zimmer-Wohnung in sehr gutem Zustand – 83,10 m² mit Garage
Objektbeschreibung
Diese großzügige Wohnung befindet sich in einem gepflegten Mehrfamilienhaus (Baujahr 1998) aus Ziegelmauerwerk. Sie überzeugt durch ihren sehr guten Standard und eine durchdachte Raumaufteilung auf einer Gesamtfläche von 83,10 m².
Raumaufteilung
- Wohnzimmer: 30 m²
- Schlafzimmer 1: 18 m²
- Schlafzimmer 2: 12 m²
- Schlafzimmer 3: 9 m²
- Küche: 6 m² mit Fenster
- Badezimmer: 1
- Stockwerk: Gebäude mit insgesamt 4 Etagen
- Raumhöhe: 2,50 m
Ausstattung
Die Wohnung verfügt über:
- Neue Holz- und Kunststofffenster
- Fußböden mit modernen Paneelen
- Voll ausgestattete Küche mit:
- Backofen
- Geschirrspüler
- Elektroherd
- Mikrowelle
- Gegensprechanlage
- Gaskombi-Therme für Warmwasser und Heizung
- Gasanschluss vorhanden
- Garage
Lage
Die Wohnung liegt in einem gut angebundenen Wohngebiet. In unmittelbarer Nähe befinden sich:
- Einkaufsmöglichkeiten
- Apotheke
- Gastronomie
- Kindergarten und Krippe
- Grundschule
- Spielplatz
- Öffentliche Verkehrsmittel
Zusatzinformationen
Monatliche Kosten: €1.157 (PLN 4.930) – Bruttobetrag
Diese Wohnung bietet großzügigen Wohnkomfort für Familien oder alle, die viel Platz schätzen – perfekt gelegen und hochwertig ausgestattet.
Hinweis
- Das erste Foto in unserer Galerie wurde leicht bearbeitet, um zu veranschaulichen, wie die Wohnung aussehen könnte – beispielsweise durch eine geänderte Wandfarbe. Die nachfolgenden Bilder zeigen den tatsächlichen Zustand der Immobilie.
- Der in Euro angegebene Preis entspricht dem Preis in Złoty, stellt jedoch aufgrund von Wechselkursschwankungen stets einen Näherungswert dar. In unseren Anzeigen ist stets auch der vom Verkäufer gewünschte Preis in Złoty angegeben.
Hinweise zur polnischen Immobilienpraxis:
- Begrenzte Objektinformationen: In Polen ist es üblich, dass Immobilienanzeigen nicht den genauen Standort der Immobilie preisgeben.
- Grundrisse: Detaillierte Grundrisse werden in Exposés nicht immer bereitgestellt.
Als Immobilienbüro bieten wir deutschsprachigen Kunden eine umfassende Betreuung an. Wir vertreten Sie als Käufer.
Wir arbeiten mit geprüften Partnern zusammen (Immobilienbewertung, Steuerliche und rechtliche Beratung, Vereidigte Übersetzungen, Renovierung sanierungsbedürftiger Objekte).
Bei Kapitalanlagen übernehmen wir auch die Verwaltung der Immobilie.
Persönliche Begleitung – transparent, kompetent und auf Deutsch.
Eigenschaften der Immobilie
- Gas
- Garage
- Keller
Diese Immobilien könnten Sie ebenfalls interessieren
Über uns
Willkommen bei Ihrem Immobilienpartner in Stettin und Westpommern!
Wir sind ein engagiertes Immobilienbüro mit langjähriger Erfahrung auf dem lokalen Markt. In unserem Angebot finden Sie eine große Auswahl an Immobilien in Stettin sowie attraktive Objekte an der polnischen Ostseeküste – ob zum Wohnen, als Kapitalanlage oder zur Feriennutzung.
Wir sprechen Deutsch und begleiten Sie gerne professionell durch den gesamten Kauf- oder Verkaufsprozess. Ob Wohnung, Haus, Grundstück oder Ferienimmobilie – wir finden garantiert die passende Adresse für Sie!
Besuchen Sie uns auf eine Tasse Kaffee in unserem Büro oder nehmen Sie einfach Kontakt mit uns auf. Wir freuen uns auf Sie!
Zusammenarbeit mit uns
Wir sind ein Immobilienbüro, das mit Maklerbüros in der Woiwodschaft Westpommern in Polen zusammenarbeitet. Dabei vertreten wir stets nur eine Seite der Transaktion – nämlich den Kunden aus Deutschland und den DACH-Ländern. In seinem Namen verhandeln wir den Preis, prüfen das Angebot und übernehmen sämtliche Formalitäten.
Auch nach dem Kauf stehen wir unseren Kunden beratend zur Seite und bleiben mit ihnen in Kontakt. Auf Wunsch unterstützen wir auch bei der Renovierung oder umfassenden Sanierung der Immobilie. Darüber hinaus bieten wir die Verwaltung von vermieteten Immobilien an – im Raum Stettin und der näheren Umgebung.
Wir legen großen Wert auf klare Regeln und ein faires Miteinander. Unsere Provision entspricht den in Polen üblichen Sätzen: 3.69% des Kaufpreises bei Wohnungen und Häusern sowie 6,15% bei Grundstücken. Die Provision wird beim Notar im Rahmen der Vertragsunterzeichnung fällig und bezahlt.
Wir arbeiten mit einer renommierten deutschsprachigen Notarkanzlei in Stettin zusammen.
Steuerliche Vorteile
Beim Erwerb von Bestandsimmobilien fällt lediglich eine geringe Grunderwerbsteuer an, die bei Immobilien auf dem Zweitmarkt 2% und bei Immobilien auf dem Erstmarkt 0% beträgt. Darüber hinaus richtet sich die Grundsteuer in Polen nach der Fläche und ist äußerst niedrig.