Stettin: Hochparterre-Wohnung mit Garten, separatem Eingang und Renovierungspotenzial
295,000 €
Beschreibung
Hochparterre-Wohnung in einem Dreifamilienhaus mit separatem Eingang und Gartenanteil
Zum Verkauf steht eine großzügige Hochparterre-Wohnung in einem gepflegten Dreifamilienhaus, das durch separate Eingänge für jede Wohneinheit ein hohes Maß an Privatsphäre bietet.
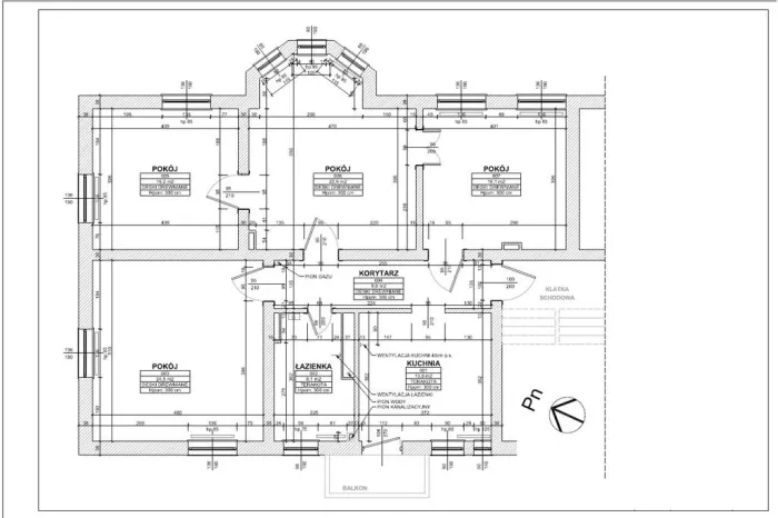
Die Wohnung verfügt über drei große, helle Zimmer, eine separate Küche mit Zugang zu einem Balkon sowie ein Badezimmer. Zwei der Zimmer sind mit originalem Eichenparkett ausgestattet, das dritte mit Dielenboden — ideale Voraussetzungen für eine stilvolle Renovierung nach eigenen Vorstellungen.
Ein besonderes Highlight ist der zur Wohnung gehörende private Garten mit einer Fläche von ca. 500 m². Hier bietet sich die Möglichkeit, individuelle Gartenideen zu verwirklichen oder zusätzlichen Raum durch den Bau einer Garage zu schaffen. Zusätzlich gehört ein großer Kellerraum zur Wohnung, der viel Stauraum bietet.
Ausstattung & Besonderheiten:
- Drei großzügige Zimmer
- Separate Küche mit Balkon
- Badezimmer mit Tageslicht
- Originaler Eichenparkettboden in zwei Zimmern
- Dielenboden im dritten Zimmer
- Großer Gartenanteil (ca. 500 m²) zur exklusiven Nutzung
- Möglichkeit zur Errichtung einer Garage
- Große Kellerfläche
- Pkw-Stellplätze auf dem Grundstück
- Separater Eingang
- Isoliertes Haus mit modernisiertem Dach
- Renovierungsbedürftig – ideal zur individuellen Gestaltung
Lage
Die Immobilie befindet sich in einer ruhigen Wohngegend unweit vom Stadtzentrum. Diese Lage vereint die Vorteile urbanen Lebens mit der friedlichen Atmosphäre eines grünen Wohnumfelds. Einkaufsmöglichkeiten, Schulen, öffentliche Verkehrsmittel und Freizeiteinrichtungen sind bequem erreichbar.
Fazit
Diese Wohnung bietet viel Potenzial zur individuellen Gestaltung in attraktiver Lage. Sie ist ideal für alle, die nahe am Zentrum wohnen möchten, ohne auf Ruhe und Privatsphäre verzichten zu müssen. Eine seltene Gelegenheit, sich den Traum vom eigenen Zuhause mit Garten zu erfüllen.
Kontaktieren Sie uns gerne für weitere Informationen oder zur Vereinbarung eines Besichtigungstermins.
Details
Immobilienart: Wohnung
Stadtteil / Wohngebiet: Pogodno
Gesamtfläche: 135,86 m²
Gebäudeart: Einfamilienhaus
Baujahr: 1935
Zustand: Renovierungsbedürftig
Wandmaterial: Ziegel
Küchentyp: Mit Fenster
Anzahl der Badezimmer: 1
Erdgeschoss: Ja
Anzahl der Etagen (inkl. Erdgeschoss): 1
Warmwasserquelle: Gasdurchlauferhitzer (2-Kreislauf)
Heizung: Fernwärme aus dem lokalen Netz, Gaszentralheizung
Gasanschluss: Ja
Bodenbeläge: Parkett, Paneele, Dielen, Terrakotta
Umzäunung: Komplett eingefriedet
Garage: Ja
Garten: Ja
Öffentliche Verkehrsmittel: In der Nähe
Hinweis
- Das erste Foto in unserer Galerie wurde leicht bearbeitet, um zu veranschaulichen, wie die Wohnung aussehen könnte – beispielsweise durch eine geänderte Wandfarbe. Die nachfolgenden Bilder zeigen den tatsächlichen Zustand der Immobilie.
- Der in Euro angegebene Preis entspricht dem Preis in Złoty, stellt jedoch aufgrund von Wechselkursschwankungen stets einen Näherungswert dar. In unseren Anzeigen ist stets auch der vom Verkäufer gewünschte Preis in Złoty angegeben.
Hinweise zur polnischen Immobilienpraxis:
- Begrenzte Objektinformationen: In Polen ist es üblich, dass Immobilienanzeigen nicht den genauen Standort der Immobilie preisgeben.
- Grundrisse: Detaillierte Grundrisse werden in Exposés nicht immer bereitgestellt.
Als Immobilienbüro bieten wir deutschsprachigen Kunden eine umfassende Betreuung an. Wir vertreten Sie als Käufer.
Wir arbeiten mit geprüften Partnern zusammen (Immobilienbewertung, Steuerliche und rechtliche Beratung, Vereidigte Übersetzungen, Renovierung sanierungsbedürftiger Objekte).
Bei Kapitalanlagen übernehmen wir auch die Verwaltung der Immobilie.
Persönliche Begleitung – transparent, kompetent und auf Deutsch.
Eigenschaften der Immobilie
- Erdgeschoss
- Gas
- Zaun
- Garage
- Garten
- Keller
- Balkon
Diese Immobilien könnten Sie ebenfalls interessieren
Über uns
Willkommen bei Ihrem Immobilienpartner in Stettin und Westpommern!
Wir sind ein engagiertes Immobilienbüro mit langjähriger Erfahrung auf dem lokalen Markt. In unserem Angebot finden Sie eine große Auswahl an Immobilien in Stettin sowie attraktive Objekte an der polnischen Ostseeküste – ob zum Wohnen, als Kapitalanlage oder zur Feriennutzung.
Wir sprechen Deutsch und begleiten Sie gerne professionell durch den gesamten Kauf- oder Verkaufsprozess. Ob Wohnung, Haus, Grundstück oder Ferienimmobilie – wir finden garantiert die passende Adresse für Sie!
Besuchen Sie uns auf eine Tasse Kaffee in unserem Büro oder nehmen Sie einfach Kontakt mit uns auf. Wir freuen uns auf Sie!
Zusammenarbeit mit uns
Wir sind ein Immobilienbüro, das mit Maklerbüros in der Woiwodschaft Westpommern in Polen zusammenarbeitet. Dabei vertreten wir stets nur eine Seite der Transaktion – nämlich den Kunden aus Deutschland und den DACH-Ländern. In seinem Namen verhandeln wir den Preis, prüfen das Angebot und übernehmen sämtliche Formalitäten.
Auch nach dem Kauf stehen wir unseren Kunden beratend zur Seite und bleiben mit ihnen in Kontakt. Auf Wunsch unterstützen wir auch bei der Renovierung oder umfassenden Sanierung der Immobilie. Darüber hinaus bieten wir die Verwaltung von vermieteten Immobilien an – im Raum Stettin und der näheren Umgebung.
Wir legen großen Wert auf klare Regeln und ein faires Miteinander. Unsere Provision entspricht den in Polen üblichen Sätzen: 3.69% des Kaufpreises bei Wohnungen und Häusern sowie 6,15% bei Grundstücken. Die Provision wird beim Notar im Rahmen der Vertragsunterzeichnung fällig und bezahlt.
Wir arbeiten mit einer renommierten deutschsprachigen Notarkanzlei in Stettin zusammen.
Steuerliche Vorteile
Beim Erwerb von Bestandsimmobilien fällt lediglich eine geringe Grunderwerbsteuer an, die bei Immobilien auf dem Zweitmarkt 2% und bei Immobilien auf dem Erstmarkt 0% beträgt. Darüber hinaus richtet sich die Grundsteuer in Polen nach der Fläche und ist äußerst niedrig.