Bezugsfertige Maisonette mit Garten in Mierzyn – moderne 4-Zi.-Wohnung im Neubau
173,000 €
Beschreibung
Moderne Maisonette-Wohnung mit Garten in Mierzyn – Neubau, bezugsbereit
Zum Verkauf steht eine bezugsfertige, zweistöckige Vierzimmerwohnung im modernen Neubau-Standard, gelegen in einem niedrigen Mehrfamilienhaus in ruhiger und grüner Lage von Mierzyn – einem beliebten Vorort von Stettin.
Highlight der Wohnung: Die Wohnung verfügt über einen direkten Zugang zu einem privaten Garten mit einer Fläche von ca. 70 m² – ideal für Familien mit Kindern, Haustierfreunde oder alle, die naturnah wohnen möchten.
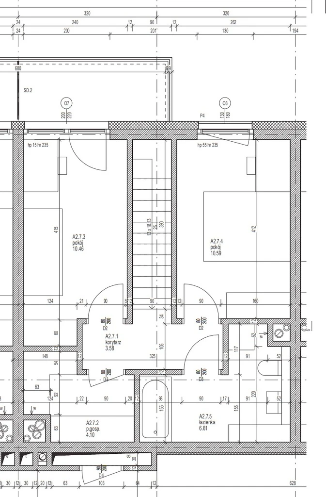
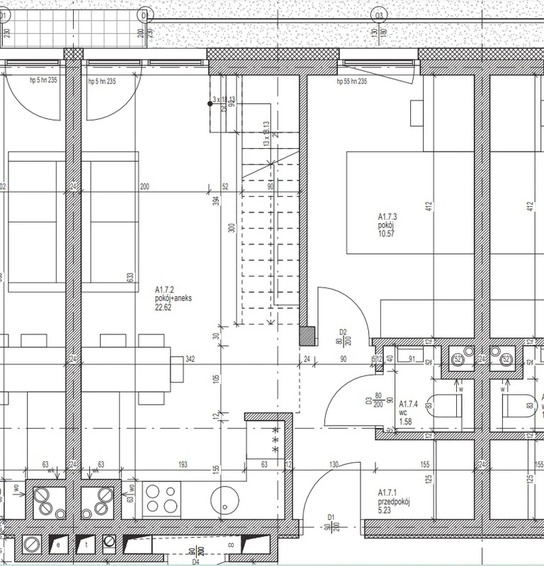
Wohnfläche – ca. 75,3 m² – optimal verteilt auf zwei Etagen:
Erdgeschoss:
- Heller Wohn- und Essbereich mit offener Küche – ca. 22,6 m²
- Zusätzliches Zimmer – ca. 10,57 m² (z. B. Büro oder Gästezimmer)
- Separate Toilette – ca. 1,58 m²
- Großzügiger Eingangsbereich / Flur
Obergeschoss:
- Schlafzimmer – ca. 10,59 m²
- Zweites Schlafzimmer mit Ausgang zum Balkon – ca. 10,46 m²
- Komfortables Badezimmer mit Möglichkeit zum Einbau einer Badewanne oder Dusche – ca. 6,61 m²
- Flur / Treppenbereich
Ausstattung im Bauträgerstandard:
- Dreifachverglaste Fenster mit integrierten Lüftungselementen
- Maschinenverputzte Gipswände, bereit für Malerarbeiten
- Vorbereitete Elektro-, Wasser- und Heizungsinstallationen
- TV- und Internetanschlüsse verlegt
- Flachheizkörper in den Schlafzimmern, Handtuchheizkörper im Bad (Fußbodenheizung optional möglich)
Zusätzlich:
Zu jeder Wohnung gehört obligatorisch mindestens ein Stellplatz in der Tiefgarage des Gebäudes (der Aufzug fährt bis zur Ebene -1).
Preis pro Stellplatz: €9.370 (PLN 40.000)
Maße: ca. 3 m breit und 5,5 m lang – bequemes Parken garantiert.
Weitere Merkmale der Immobilie:
- Beheizung und Warmwasserversorgung durch das lokale Fernwärmesystem (SEC)
- Die Bauarbeiten sind abgeschlossen – Schlüsselübergabe zur Innenausstattung ist bereits möglich
- Eigentumsübertragung geplant für das 1. oder 2. Quartal 2025
Die Wohnanlage:
Die Architektur ist modern und ansprechend gestaltet – mit breiten Gehwegen, gepflegten Grünflächen, niedriger Neubebauung und einem Spielplatz für Kinder.
Lage:
Die Wohnung befindet sich in ausgezeichneter, familienfreundlicher Lage mit ruhiger Nachbarschaft. In unmittelbarer Nähe befinden sich:
- Schule
- Kindergarten und Krippe
- Lokale Einkaufsmöglichkeiten
- Medizinisches Zentrum / Arztpraxis
Diese Eigentumswohnung eignet sich sowohl als Familiendomizil als auch als langfristige Kapitalanlage in einer der wachstumsstärksten Wohngegenden in der Region Stettin.
Kontaktieren Sie uns jetzt für eine unverbindliche Besichtigung und lassen Sie sich vom Potenzial dieser Immobilie überzeugen.
Details
Immobilienart: Wohnung
Gesamtfläche: 75,33 m²
Grundstückseigentum: Eigentum
Gebäudetyp: Wohnblock
Baujahr: 2024
Standard: Bauträgerstandard
Zustand des Gebäudes: Neuwertig
Bauweise: Ziegel
Küchentyp: Kochnische
Küchenfläche: 5 m²
Anzahl der Badezimmer: 1
Badezimmerfläche: 6,61 m²
Anzahl separater WCs: 1
WC-Fläche: 1,5 m²
Zufahrtsstraße: Ruhige Straße
Zimmerflächen: 22,67 m² + 10,57 m² + 10,59 m² + 10,46 m²
Erdgeschoss: Ja
Anzahl der Etagen (inkl. EG): 3
Raumhöhe: 2,65 m
Warmwasser: Zentrale Versorgung
Heizung: Fernwärme
Telefonanschluss: Ja
Aufzug im Gebäude: Ja
Starkstromanschluss (400V): Ja
Internetzugang: Ja
Kabelfernsehen: Ja
Gegensprechanlage: Ja
Fenstertyp: Kunststofffenster
Bodenbelag: Betonrohboden
Umzäunung: Komplett umzäunt
Garage: Ja
Anzahl der Stellplätze: 1
Garten: Ja
Barrierefrei: Ja
Anzahl der Balkone: 1
Balkonfläche: 5 m²
Terrasse: Ja
Anzahl der Terrassen: 1
Terrassenfläche: 4 m²
Ausrichtung: Osten
Nächstgelegener Lebensmittelladen: In der Nähe
Nächste Kindertagesstätte: In der Nähe
Nächster Kindergarten: In der Nähe
Nächste Grundschule: In der Nähe
Nächster Fernbusbahnhof (PKS): In der Nähe
Öffentliche Verkehrsanbindung: In der Nähe
Nächste Apotheke: In der Nähe
Nächstes Restaurant: In der Nähe
Nächstes Fitnessstudio: In der Nähe
Nächster Spielplatz: In der Nähe
Badezimmerausstattung: Handtuchheizkörper
Hinweis
- Das erste Foto in unserer Galerie wurde leicht bearbeitet, um zu veranschaulichen, wie die Wohnung aussehen könnte – beispielsweise durch eine geänderte Wandfarbe. Die nachfolgenden Bilder zeigen den tatsächlichen Zustand der Immobilie.
- Der in Euro angegebene Preis entspricht dem Preis in Złoty, stellt jedoch aufgrund von Wechselkursschwankungen stets einen Näherungswert dar. In unseren Anzeigen ist stets auch der vom Verkäufer gewünschte Preis in Złoty angegeben.
Hinweise zur polnischen Immobilienpraxis:
- Begrenzte Objektinformationen: In Polen ist es üblich, dass Immobilienanzeigen nicht den genauen Standort der Immobilie preisgeben.
- Grundrisse: Detaillierte Grundrisse werden in Exposés nicht immer bereitgestellt.
Als Immobilienbüro bieten wir deutschsprachigen Kunden eine umfassende Betreuung an. Wir vertreten Sie als Käufer.
Wir arbeiten mit geprüften Partnern zusammen (Immobilienbewertung, Steuerliche und rechtliche Beratung, Vereidigte Übersetzungen, Renovierung sanierungsbedürftiger Objekte).
Bei Kapitalanlagen übernehmen wir auch die Verwaltung der Immobilie.
Persönliche Begleitung – transparent, kompetent und auf Deutsch.
Eigenschaften der Immobilie
- Erdgeschoss
- Aufzug
- Zaun
- Garage
- Garten
- Barrierefrei
- Terrasse
- Balkon
Diese Immobilien könnten Sie ebenfalls interessieren
Über uns
Willkommen bei Ihrem Immobilienpartner in Stettin und Westpommern!
Wir sind ein engagiertes Immobilienbüro mit langjähriger Erfahrung auf dem lokalen Markt. In unserem Angebot finden Sie eine große Auswahl an Immobilien in Stettin sowie attraktive Objekte an der polnischen Ostseeküste – ob zum Wohnen, als Kapitalanlage oder zur Feriennutzung.
Wir sprechen Deutsch und begleiten Sie gerne professionell durch den gesamten Kauf- oder Verkaufsprozess. Ob Wohnung, Haus, Grundstück oder Ferienimmobilie – wir finden garantiert die passende Adresse für Sie!
Besuchen Sie uns auf eine Tasse Kaffee in unserem Büro oder nehmen Sie einfach Kontakt mit uns auf. Wir freuen uns auf Sie!
Zusammenarbeit mit uns
Wir sind ein Immobilienbüro, das mit Maklerbüros in der Woiwodschaft Westpommern in Polen zusammenarbeitet. Dabei vertreten wir stets nur eine Seite der Transaktion – nämlich den Kunden aus Deutschland und den DACH-Ländern. In seinem Namen verhandeln wir den Preis, prüfen das Angebot und übernehmen sämtliche Formalitäten.
Auch nach dem Kauf stehen wir unseren Kunden beratend zur Seite und bleiben mit ihnen in Kontakt. Auf Wunsch unterstützen wir auch bei der Renovierung oder umfassenden Sanierung der Immobilie. Darüber hinaus bieten wir die Verwaltung von vermieteten Immobilien an – im Raum Stettin und der näheren Umgebung.
Wir legen großen Wert auf klare Regeln und ein faires Miteinander. Unsere Provision entspricht den in Polen üblichen Sätzen: 3.69% des Kaufpreises bei Wohnungen und Häusern sowie 6,15% bei Grundstücken. Die Provision wird beim Notar im Rahmen der Vertragsunterzeichnung fällig und bezahlt.
Wir arbeiten mit einer renommierten deutschsprachigen Notarkanzlei in Stettin zusammen.
Steuerliche Vorteile
Beim Erwerb von Bestandsimmobilien fällt lediglich eine geringe Grunderwerbsteuer an, die bei Immobilien auf dem Zweitmarkt 2% und bei Immobilien auf dem Erstmarkt 0% beträgt. Darüber hinaus richtet sich die Grundsteuer in Polen nach der Fläche und ist äußerst niedrig.