Stilvolles 3-Zimmer-Apartment im Zentrum von Stettin mit eigenem Eingang & Garten
272,000 € 283,000 €
Beschreibung
Stilvolles Apartment im Herzen von Stettin – ideal für Familien oder ruhige Geschäftstätigkeit
Sie suchen ein komfortables Zuhause im Stadtzentrum oder einen Ort für eine diskrete Geschäftstätigkeit in exzellenter Lage? Dieses charmante Erdgeschossapartment mit separatem Straßeneingang bietet Ihnen beides! Die Wohnung befindet sich im Herzen von Stettin und verfügt über eine großzügige Wohnfläche von 90,97 m².
Highlights der Immobilie:
- Erdgeschoss mit separatem Eingang – ideal für Familien mit Kindern, Senior*innen, Personen mit eingeschränkter Mobilität sowie für stille Tätigkeiten
- Stilvoller Umbau im Jahr 2020 auf Basis professioneller Planung – vollständige technische Dokumentation liegt vor
-
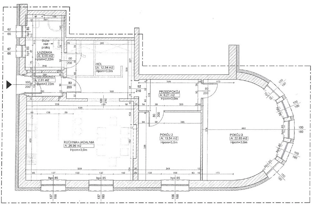
Funktionale Raumaufteilung:
-
Windfang – 2,84 m²
- Flur – 12,58 m²
- Badezimmer – 5,76 m²
- Korridor – 6,25 m²
- Küche mit Essbereich – 26,96 m²
- Schlafzimmer – 13,50 m²
-
Wohnzimmer – 23,09 m²
-
Moderne Küche mit maßgefertigten Einbaumöbeln in Weiß, Granitarbeitsplatten, Kücheninsel, und ausgestattet mit: Backofen, Kühl-Gefrierkombination, Gaskochfeld, Dunstabzugshaube, Geschirrspüler
- Helles Badezimmer mit hochwertigen Materialien, Walk-in-Dusche, Waschmaschine, Grohe Unterputz-WC, moderner Heizkörper, mechanische Belüftung
- Großer Einbauschrank im Flur aus Massivholz
- Massivholz-Innentüren, neue Installationen (Wasser, Gas, Elektrik, Belüftung)
- Zentralheizung, gusseiserne Radiatoren
- Warmwasseraufbereitung über elektrischen Boiler
- Fußböden mit Estrichdämmung, belegt mit Granitfliesen und Holzdielen
- Dreifachverglaste Fenster mit ausgezeichneter Wärme- und Schalldämmung, Granitfensterbänke
- Fensterausrichtung: Südwesten und Nordwesten
- Gebäude mit renovierter Fassade (vor 10 Jahren)
- Überwachungssystem mit Kameras und Bewegungsmeldern
- TV-Anschluss vorhanden
- Gepflegter Gemeinschaftsgartenbereich
Lage – urban, grün und voller Leben
Diese Immobilie befindet sich im historischen Stadtkern von Stettin – einem Viertel, das den Charme der Vergangenheit mit dem Komfort der Moderne vereint. Alles, was Sie für den Alltag brauchen, befindet sich in unmittelbarer Nähe:
- Stadtverwaltung, Jasne Błonia, Kita, Grundschule, Gymnasium, Schwimmbad, Puppentheater, Fitnessstudio – alles fußläufig erreichbar
- Öffentlicher Nahverkehr: Straßenbahnlinien 1, 2, 3, 4, 5 sowie Buslinien 70 und 87
-
Zentrale Highlights der Stadt in der Nähe:
-
Ogrody Śródmieście – ca. 750 m
- Galaxy-Einkaufszentrum – ca. 1,2 km
- Kino Pionier – ca. 1,3 km
- Philharmonie – ca. 1,8 km
Diese einmalige Lage bietet nicht nur urbanes Flair, sondern auch zahlreiche Parkmöglichkeiten direkt vor dem Gebäude (öffentliche Zone).
Weitere Vorteile:
- Hochwertige Baumaterialien
- Kellerraum mit ca. 16 m²
- Monatliche Nebenkosten:
- Hausgeld inkl. Heizung, Wasser, Müll: circa €210 (PLN 900)
- Instandhaltungsrücklage: circa €54 (PLN 230)
- Strom und Gas nach Verbrauch
- Monitoring vorhanden
- Unterstützungsangebote rund um Renovierung und Ausstattung
Freistehende Möbel auf den Fotos sind nicht Bestandteil des Angebots.
Für weitere Informationen oder eine Besichtigung steht unsere Website mit vielen attraktiven Angeboten zur Verfügung. Wir unterstützen Sie auch bei Finanzierung, Kauf, Verkauf und Vermietung Ihrer Immobilie.
Details
Eigentumswohnung im Herzen der Stadt – Hochwertig, großzügig und mit historischem Charme
Objekttyp: Wohnung
Lage: Stadtzentrum – Stadtteil Śródmieście-Centrum
Wohnfläche: 90,97 m²
Baujahr: 1937
Stockwerk: Erdgeschoss (1 von 1 Etagen)
Raumhöhe: 3,00 m
Bauweise: Massivbau – Ziegel
Zustand: Hochwertiger Standard
Raumaufteilung:
- Zimmergrößen: 27 m², 23 m², 14 m²
- Küche: Halboffen mit Durchreiche – großzügige 27 m²
- Badezimmer: 1
Ausstattung:
- Bodenbeläge: Dielen, Parkett
- Fenster: Kunststofffenster
- Heizung: Fernwärme (Zentralheizung über städtisches Netz)
- Gasanschluss: vorhanden
- Einbaugeräte:
- Kühlschrank
- Backofen
- Geschirrspüler
- Sicherheitsmerkmale:
- Videoüberwachung (Monitoring)
- Gegensprechanlage
- Einfriedung: Komplett umzäuntes Grundstück
Lagevorteile – Alles in der Nähe:
- Öffentliche Verkehrsmittel: fußläufig erreichbar
- Einrichtungen in unmittelbarer Umgebung:
- Supermarkt
- Parkanlagen
- Schwimmbad
- Schule
- Kindergarten
- Universität
- Apotheke
- Bank
- Krankenhaus
- Fitnessstudio
- Gastronomie
- Spielplatz
Diese stilvolle Wohnung besticht durch ihre großzügige Raumhöhe, solide Bausubstanz und moderne Ausstattung. Die Kombination aus altstädtischem Charme und zeitgemäßem Wohnkomfort macht diese Immobilie zu einer idealen Wahl für Familien, Paare oder Investoren.
Dank der sehr zentralen Lage profitieren Sie von kurzen Wegen zu allen Einrichtungen des täglichen Bedarfs sowie zu Bildungs- und Freizeiteinrichtungen.
Ein seltenes Angebot in einem begehrten Stadtteil – vereinbaren Sie noch heute einen Besichtigungstermin!
Hinweis
- Das erste Foto in unserer Galerie wurde leicht bearbeitet, um zu veranschaulichen, wie die Wohnung aussehen könnte – beispielsweise durch eine geänderte Wandfarbe. Die nachfolgenden Bilder zeigen den tatsächlichen Zustand der Immobilie.
- Der in Euro angegebene Preis entspricht dem Preis in Złoty, stellt jedoch aufgrund von Wechselkursschwankungen stets einen Näherungswert dar. In unseren Anzeigen ist stets auch der vom Verkäufer gewünschte Preis in Złoty angegeben.
Hinweise zur polnischen Immobilienpraxis:
- Begrenzte Objektinformationen: In Polen ist es üblich, dass Immobilienanzeigen nicht den genauen Standort der Immobilie preisgeben.
- Grundrisse: Detaillierte Grundrisse werden in Exposés nicht immer bereitgestellt.
Als Immobilienbüro bieten wir deutschsprachigen Kunden eine umfassende Betreuung an. Wir vertreten Sie als Käufer.
Wir arbeiten mit geprüften Partnern zusammen (Immobilienbewertung, Steuerliche und rechtliche Beratung, Vereidigte Übersetzungen, Renovierung sanierungsbedürftiger Objekte).
Bei Kapitalanlagen übernehmen wir auch die Verwaltung der Immobilie.
Persönliche Begleitung – transparent, kompetent und auf Deutsch.
Eigenschaften der Immobilie
- Erdgeschoss
- Gas
- Zaun
- Keller
- Garten
Diese Immobilien könnten Sie ebenfalls interessieren
Über uns
Willkommen bei Ihrem Immobilienpartner in Stettin und Westpommern!
Wir sind ein engagiertes Immobilienbüro mit langjähriger Erfahrung auf dem lokalen Markt. In unserem Angebot finden Sie eine große Auswahl an Immobilien in Stettin sowie attraktive Objekte an der polnischen Ostseeküste – ob zum Wohnen, als Kapitalanlage oder zur Feriennutzung.
Wir sprechen Deutsch und begleiten Sie gerne professionell durch den gesamten Kauf- oder Verkaufsprozess. Ob Wohnung, Haus, Grundstück oder Ferienimmobilie – wir finden garantiert die passende Adresse für Sie!
Besuchen Sie uns auf eine Tasse Kaffee in unserem Büro oder nehmen Sie einfach Kontakt mit uns auf. Wir freuen uns auf Sie!
Zusammenarbeit mit uns
Wir sind ein Immobilienbüro, das mit Maklerbüros in der Woiwodschaft Westpommern in Polen zusammenarbeitet. Dabei vertreten wir stets nur eine Seite der Transaktion – nämlich den Kunden aus Deutschland und den DACH-Ländern. In seinem Namen verhandeln wir den Preis, prüfen das Angebot und übernehmen sämtliche Formalitäten.
Auch nach dem Kauf stehen wir unseren Kunden beratend zur Seite und bleiben mit ihnen in Kontakt. Auf Wunsch unterstützen wir auch bei der Renovierung oder umfassenden Sanierung der Immobilie. Darüber hinaus bieten wir die Verwaltung von vermieteten Immobilien an – im Raum Stettin und der näheren Umgebung.
Wir legen großen Wert auf klare Regeln und ein faires Miteinander. Unsere Provision entspricht den in Polen üblichen Sätzen: 3.69% des Kaufpreises bei Wohnungen und Häusern sowie 6,15% bei Grundstücken. Die Provision wird beim Notar im Rahmen der Vertragsunterzeichnung fällig und bezahlt.
Wir arbeiten mit einer renommierten deutschsprachigen Notarkanzlei in Stettin zusammen.
Steuerliche Vorteile
Beim Erwerb von Bestandsimmobilien fällt lediglich eine geringe Grunderwerbsteuer an, die bei Immobilien auf dem Zweitmarkt 2% und bei Immobilien auf dem Erstmarkt 0% beträgt. Darüber hinaus richtet sich die Grundsteuer in Polen nach der Fläche und ist äußerst niedrig.