Maisonette mit Garten in Mierzyn – Neubau nahe Stettin in ruhiger Wohnlage
194,000 €
Beschreibung
Großzügige Maisonette-Wohnung mit Garten in gefragter Lage nahe Stettin
Zum Verkauf steht eine moderne, zweistöckige 4-Zimmer-Wohnung im Erstbezugszustand (Entwicklungsstandard), gelegen in einer beliebten Wohngegend unweit von Stettin. Die Wohnung verfügt über einen direkten Zugang zu einem privaten Garten mit einer Fläche von ca. 90 m² – ideal zum Entspannen im Grünen oder für Familien mit Kindern.
Wohnfläche: ca. 84,5 m²
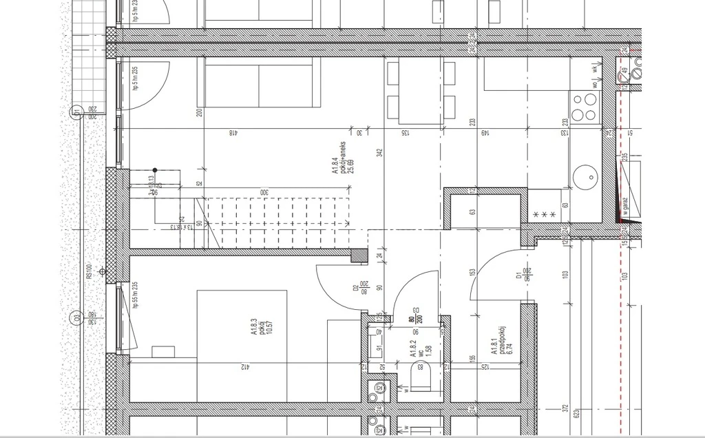
Raumaufteilung:
Erdgeschoss:
- Heller Wohnbereich mit offener Küche: 25,69 m²
- Zimmer: 10,57 m²
- Gäste-WC: 1,58 m²
- Flur
Obergeschoss:
- Schlafzimmer: 10,59 m²
- Schlafzimmer mit Zugang zum Balkon: 11 m²
- Badezimmer mit Fenster: 6,61 m²
- Abstell- bzw. Ankleideraum: 8 m²
- Flur
Ausstattungsmerkmale (Entwicklungsstandard):
- Dreifach verglaste Fenster mit Lüftungssystem
- Maschinenverputzte Gipswände
- Installierte Elektro-, Wasser-, Abwasser- und Heizungsleitungen
- Vorinstallierte Fernseh- und Internetanschlüsse
- Flachheizkörper in den Schlafzimmern
- Handtuchheizkörper im Bad (eine Fußbodenheizung kann realisiert werden)
Zusätzliche Informationen:
-
Zu jeder Wohnung ist der Erwerb von mindestens einem Stellplatz in der Tiefgarage verpflichtend.
Preis pro Stellplatz: €9.400 (PLN 40.000).
Breite: ca. 3 m | Länge: ca. 5,5 m
Der Aufzug fährt direkt zur Tiefgarage (Ebene -1). -
Heizungs- und Warmwasserversorgung über das städtische Fernwärmesystem (SEC)
Wohnanlage & Umgebung:
- Zeitgemäße Architektur und gut durchdachtes Wohnkonzept
- Vollständig erschlossenes Grundstück mit Gehwegen, Grünanlagen und einem Kinderspielplatz
- Ruhige Nachbarschaft mit überwiegend niedriger Bebauung
- Perfekte Anbindung an die Stadt Stettin
Infrastruktur in der Nähe:
- Kindergarten, Vorschule und Schule
- Nahversorger und Einzelhandel in der Umgebung
- Medizinisches Versorgungszentrum
Gerne laden wir Sie zu einer Besichtigung dieser attraktiven Immobilie ein.
Details
Immobilienart: Wohnung
Gesamtfläche: 84,50 m²
Grundstückseigentum: Eigentum
Gebäudetyp: Wohnblock
Baujahr: 2024
Standard: Bauträgerstandard
Gebäudestatus: Neuwertig
Bauweise: Ziegel
Küchentyp: Kochnische
Küchenfläche: 5 m²
Anzahl der Badezimmer: 1
Badezimmerfläche: 6,61 m²
Anzahl der WCs: 1
WC-Fläche: 1,5 m²
Zufahrtsstraße: Ruhige Straße
Zimmergrößen:
- Wohnzimmer: 25,69 m²
- Schlafzimmer 1: 10,57 m²
- Schlafzimmer 2: 10,57 m²
- Schlafzimmer 3: 11 m²
Erdgeschoss: Ja
Anzahl der Etagen (inkl. EG): 3
Raumhöhe: 2,65 m
Warmwasser: Fernwärme
Heizung: Fernwärme
Telefonanschluss: Ja
Aufzug im Gebäude: Ja
Starkstrom (400V): Ja
Internetanschluss: Ja
Kabelfernsehen: Ja
Gegensprechanlage: Ja
Fenstertyp: Kunststofffenster
Bodenbelag: Betonrohboden
Umzäunung: Komplett eingezäunt
Garage: Ja
Anzahl der Stellplätze: 1
Garten: Ja
Anzahl der Balkone: 1
Balkonfläche: 4 m²
Terrasse: Ja
Anzahl der Terrassen: 1
Terrassenfläche: 4 m²
Ausrichtung: Osten
In der Nähe befinden sich:
- Lebensmittelgeschäft
- Kinderkrippe
- Kindergarten
- Grundschule
- Busbahnhof (PKS)
- Öffentliche Verkehrsmittel
- Apotheke
- Gastronomiebetrieb
- Fitnessstudio
- Spielplatz
Badausstattung: Handtuchheizkörper
Hinweis
- Das erste Foto in unserer Galerie wurde leicht bearbeitet, um zu veranschaulichen, wie die Wohnung aussehen könnte – beispielsweise durch eine geänderte Wandfarbe. Die nachfolgenden Bilder zeigen den tatsächlichen Zustand der Immobilie.
- Der in Euro angegebene Preis entspricht dem Preis in Złoty, stellt jedoch aufgrund von Wechselkursschwankungen stets einen Näherungswert dar. In unseren Anzeigen ist stets auch der vom Verkäufer gewünschte Preis in Złoty angegeben.
Hinweise zur polnischen Immobilienpraxis:
- Begrenzte Objektinformationen: In Polen ist es üblich, dass Immobilienanzeigen nicht den genauen Standort der Immobilie preisgeben.
- Grundrisse: Detaillierte Grundrisse werden in Exposés nicht immer bereitgestellt.
Als Immobilienbüro bieten wir deutschsprachigen Kunden eine umfassende Betreuung an. Wir vertreten Sie als Käufer.
Wir arbeiten mit geprüften Partnern zusammen (Immobilienbewertung, Steuerliche und rechtliche Beratung, Vereidigte Übersetzungen, Renovierung sanierungsbedürftiger Objekte).
Bei Kapitalanlagen übernehmen wir auch die Verwaltung der Immobilie.
Persönliche Begleitung – transparent, kompetent und auf Deutsch.
Eigenschaften der Immobilie
- Erdgeschoss
- Aufzug
- Zaun
- Garage
- Garten
- Terrasse
- Balkon
Diese Immobilien könnten Sie ebenfalls interessieren
Über uns
Willkommen bei Ihrem Immobilienpartner in Stettin und Westpommern!
Wir sind ein engagiertes Immobilienbüro mit langjähriger Erfahrung auf dem lokalen Markt. In unserem Angebot finden Sie eine große Auswahl an Immobilien in Stettin sowie attraktive Objekte an der polnischen Ostseeküste – ob zum Wohnen, als Kapitalanlage oder zur Feriennutzung.
Wir sprechen Deutsch und begleiten Sie gerne professionell durch den gesamten Kauf- oder Verkaufsprozess. Ob Wohnung, Haus, Grundstück oder Ferienimmobilie – wir finden garantiert die passende Adresse für Sie!
Besuchen Sie uns auf eine Tasse Kaffee in unserem Büro oder nehmen Sie einfach Kontakt mit uns auf. Wir freuen uns auf Sie!
Zusammenarbeit mit uns
Wir sind ein Immobilienbüro, das mit Maklerbüros in der Woiwodschaft Westpommern in Polen zusammenarbeitet. Dabei vertreten wir stets nur eine Seite der Transaktion – nämlich den Kunden aus Deutschland und den DACH-Ländern. In seinem Namen verhandeln wir den Preis, prüfen das Angebot und übernehmen sämtliche Formalitäten.
Auch nach dem Kauf stehen wir unseren Kunden beratend zur Seite und bleiben mit ihnen in Kontakt. Auf Wunsch unterstützen wir auch bei der Renovierung oder umfassenden Sanierung der Immobilie. Darüber hinaus bieten wir die Verwaltung von vermieteten Immobilien an – im Raum Stettin und der näheren Umgebung.
Wir legen großen Wert auf klare Regeln und ein faires Miteinander. Unsere Provision entspricht den in Polen üblichen Sätzen: 3.69% des Kaufpreises bei Wohnungen und Häusern sowie 6,15% bei Grundstücken. Die Provision wird beim Notar im Rahmen der Vertragsunterzeichnung fällig und bezahlt.
Wir arbeiten mit einer renommierten deutschsprachigen Notarkanzlei in Stettin zusammen.
Steuerliche Vorteile
Beim Erwerb von Bestandsimmobilien fällt lediglich eine geringe Grunderwerbsteuer an, die bei Immobilien auf dem Zweitmarkt 2% und bei Immobilien auf dem Erstmarkt 0% beträgt. Darüber hinaus richtet sich die Grundsteuer in Polen nach der Fläche und ist äußerst niedrig.