Swinemünde: Bezugsfertige 4-Zimmer-Neubauwohnung mit Balkon in Toplage zu verkaufen
262,000 € 283,000 €
Beschreibung
Geräumige 4-Zimmer-Wohnung mit Balkon – Erstbezug in Świnoujście
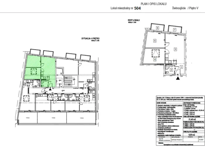
Zum Verkauf steht eine großzügige 4-Zimmer-Wohnung mit einer Gesamtfläche von 86,17 m² sowie einem Balkon (2,53 m²), gelegen im ersten Obergeschoss eines modernen Neubaus an der ul. Piłsudskiego in Świnoujście.
Bezugsfertig – Bauprojekt in der Endphase!
Die Bauarbeiten befinden sich in der finalen Abnahmephase. Die Wohneinheiten sind sofort bezugsbereit.
Raumaufteilung der Wohnung:
- Wohnbereich mit offener Küche: 16,39 m²
- Schlafzimmer 1: 14,82 m²
- Schlafzimmer 2: 12,41 m²
- Ankleidezimmer / weiteres Zimmer: 15,41 m²
- Badezimmer 1: 4,87 m²
- Badezimmer 2: 3,50 m²
- Flur / Kommunikationsbereich: 18,76 m²
- Balkon: 2,53 m²
Weitere Ausstattungsmerkmale:
- Tiefgarage mit Stellplätzen
- Abstellräume / Kellerabteile
- Vollständiges Eigentum (kein Erbbaurecht)
- Fernwärmeheizung mit Radiatoren
- Möglichkeit zur schlüsselfertigen Innenausstattung durch den Bauträger gegen Aufpreis
Attraktive Lage in Świnoujście:
- Chopin-Park: 30 m
- Kurpark: 500 m
- Supermarkt (Żabka): 150 m
- Bank (PKO Bank Polski): 40 m
- Grundschule: 1,1 km
- Restaurants und Cafés: 80 m
Flexible Zahlungsmodalitäten:
Die Zahlung kann ratenweise gemäß dem Baufortschritt erfolgen.
Weitere Wohnungen verfügbar:
Es stehen auch andere Wohnungsgrößen im Objekt zur Auswahl.
Nutzen Sie die Gelegenheit, Teil dieser attraktiven Wohnanlage zu werden – ideal als Hauptwohnsitz, Feriendomizil oder Kapitalanlage.
Wir freuen uns auf Ihre Anfrage!
Details
Art der Immobilie: Wohnung
Verfügbar ab: 30.04.2025
Alter Preis: 120.200 PLN
Gesamtfläche: 86,16 m²
Eigentumsform des Grundstücks: Eigentum
Gebäudetyp: Wohnblock
Baujahr: 2025
Standard: Entwicklertandards
Wandmaterial: Silikat
Küchentyp: Kochnische
Anzahl der Badezimmer: 2
Zimmerflächen: 16,39 m² + 14,82 m² + 14,24 m² + 15,41 m²
Anzahl der Stockwerke (inkl. Erdgeschoss): 3
Warmwasserversorgung: Fernwärme
Heizung: Zentralheizung aus dem städtischen Netz
Aufzug im Gebäude: Ja
Gasanschluss: Ja
Gegensprechanlage: Ja
Bodenbelag: Beton
Garage: Ja
In der Nähe befinden sich:
- Geschäft
- Öffentliche Verkehrsmittel
- Gastronomiebetrieb
- Bank
Hinweis
- Das erste Foto in unserer Galerie wurde leicht bearbeitet, um zu veranschaulichen, wie die Wohnung aussehen könnte – beispielsweise durch eine geänderte Wandfarbe. Die nachfolgenden Bilder zeigen den tatsächlichen Zustand der Immobilie.
- Der in Euro angegebene Preis entspricht dem Preis in Złoty, stellt jedoch aufgrund von Wechselkursschwankungen stets einen Näherungswert dar. In unseren Anzeigen ist stets auch der vom Verkäufer gewünschte Preis in Złoty angegeben.
Hinweise zur polnischen Immobilienpraxis:
- Begrenzte Objektinformationen: In Polen ist es üblich, dass Immobilienanzeigen nicht den genauen Standort der Immobilie preisgeben.
- Grundrisse: Detaillierte Grundrisse werden in Exposés nicht immer bereitgestellt.
Als Immobilienbüro bieten wir deutschsprachigen Kunden eine umfassende Betreuung an. Wir vertreten Sie als Käufer.
Wir arbeiten mit geprüften Partnern zusammen (Immobilienbewertung, Steuerliche und rechtliche Beratung, Vereidigte Übersetzungen, Renovierung sanierungsbedürftiger Objekte).
Bei Kapitalanlagen übernehmen wir auch die Verwaltung der Immobilie.
Persönliche Begleitung – transparent, kompetent und auf Deutsch.
Eigenschaften der Immobilie
- Aufzug
- Gas
- Garage
- Balkon
- an der Ostsee
Diese Immobilien könnten Sie ebenfalls interessieren
Über uns
Willkommen bei Ihrem Immobilienpartner in Stettin und Westpommern!
Wir sind ein engagiertes Immobilienbüro mit langjähriger Erfahrung auf dem lokalen Markt. In unserem Angebot finden Sie eine große Auswahl an Immobilien in Stettin sowie attraktive Objekte an der polnischen Ostseeküste – ob zum Wohnen, als Kapitalanlage oder zur Feriennutzung.
Wir sprechen Deutsch und begleiten Sie gerne professionell durch den gesamten Kauf- oder Verkaufsprozess. Ob Wohnung, Haus, Grundstück oder Ferienimmobilie – wir finden garantiert die passende Adresse für Sie!
Besuchen Sie uns auf eine Tasse Kaffee in unserem Büro oder nehmen Sie einfach Kontakt mit uns auf. Wir freuen uns auf Sie!
Zusammenarbeit mit uns
Wir sind ein Immobilienbüro, das mit Maklerbüros in der Woiwodschaft Westpommern in Polen zusammenarbeitet. Dabei vertreten wir stets nur eine Seite der Transaktion – nämlich den Kunden aus Deutschland und den DACH-Ländern. In seinem Namen verhandeln wir den Preis, prüfen das Angebot und übernehmen sämtliche Formalitäten.
Auch nach dem Kauf stehen wir unseren Kunden beratend zur Seite und bleiben mit ihnen in Kontakt. Auf Wunsch unterstützen wir auch bei der Renovierung oder umfassenden Sanierung der Immobilie. Darüber hinaus bieten wir die Verwaltung von vermieteten Immobilien an – im Raum Stettin und der näheren Umgebung.
Wir legen großen Wert auf klare Regeln und ein faires Miteinander. Unsere Provision entspricht den in Polen üblichen Sätzen: 3.69% des Kaufpreises bei Wohnungen und Häusern sowie 6,15% bei Grundstücken. Die Provision wird beim Notar im Rahmen der Vertragsunterzeichnung fällig und bezahlt.
Wir arbeiten mit einer renommierten deutschsprachigen Notarkanzlei in Stettin zusammen.
Steuerliche Vorteile
Beim Erwerb von Bestandsimmobilien fällt lediglich eine geringe Grunderwerbsteuer an, die bei Immobilien auf dem Zweitmarkt 2% und bei Immobilien auf dem Erstmarkt 0% beträgt. Darüber hinaus richtet sich die Grundsteuer in Polen nach der Fläche und ist äußerst niedrig.